Zip Pod XL 470 photo 1
Zip Kit Homes
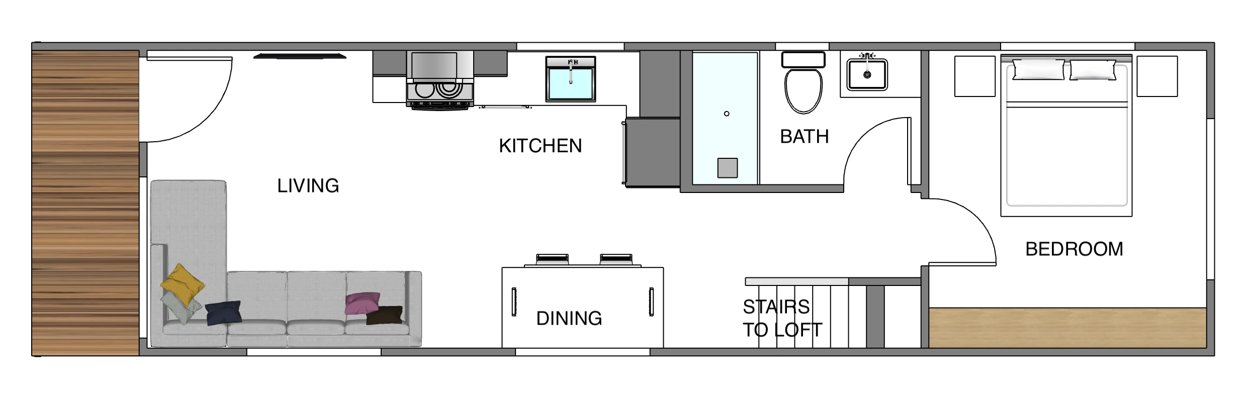
Zip Pod XL 470
WHAT’S INCLUDED: This is a complete modular unit, move-in ready. This unit is built to the IRC building code (same as any residential home) and is to be set on a permanent foundation and spot footings for the deck. It is meant to be a permanent structure that never moves. PAYMENT TERMS: Payment 1: 5% design and engineering deposit. Payment 2: 30% to purchase all materials and get on the production schedule. Payment 3: 30% when we begin construction in the factory. Payment 4: 30% when the modular is ready to ship. Final Payment: 5% When the home is set...
- ManufacturerZip Kit Homes
- ModelZip Pod XL 470
- Base Price$126,500
- SizeN/A
- BedroomsN/A
- BathroomsN/A
- CategoryGuest House, Primary Residence, Commercial
- LocationUSA
Back to directory