BOZEMAN photo 1
Zip Kit Homes
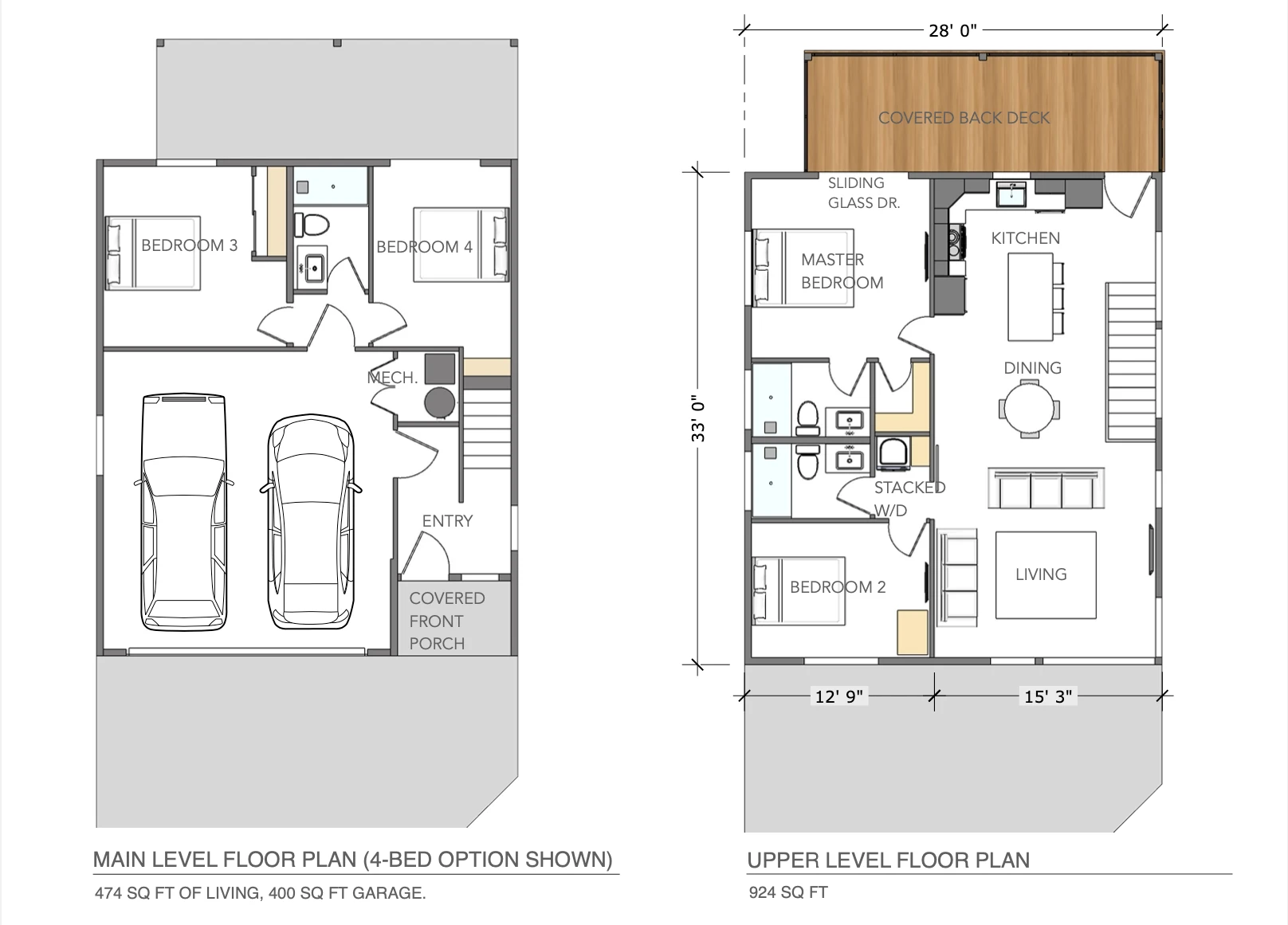
BOZEMAN
WHAT’S INCLUDED: 1. Detailed floor plans. The floor plans are designed by builders who understand how to reduce waste and simplify the construction process. 2. Structural engineering. Designed specifically for your location – snow loads, seismic, frost depth, etc. 3. Res-check energy submittal. Energy compliance information that may be required by the building department. 4. Site plan. This is specific for your lot (geotechnical and soils engineering not included). 5. Material list and “take-off” sheets. We provide a material list for the items needed to build your home. 6. Scheduling checklist. A complete checklist to help you keep track of...
- ManufacturerZip Kit Homes
- ModelBOZEMAN
- Base Price$8
- Size1,400 sq ft
- Bedrooms2
- BathroomsN/A
- CategoryGuest House, Primary Residence
- LocationUSA
Back to directory