Zumette photo 1
Unity Homes
Zumette
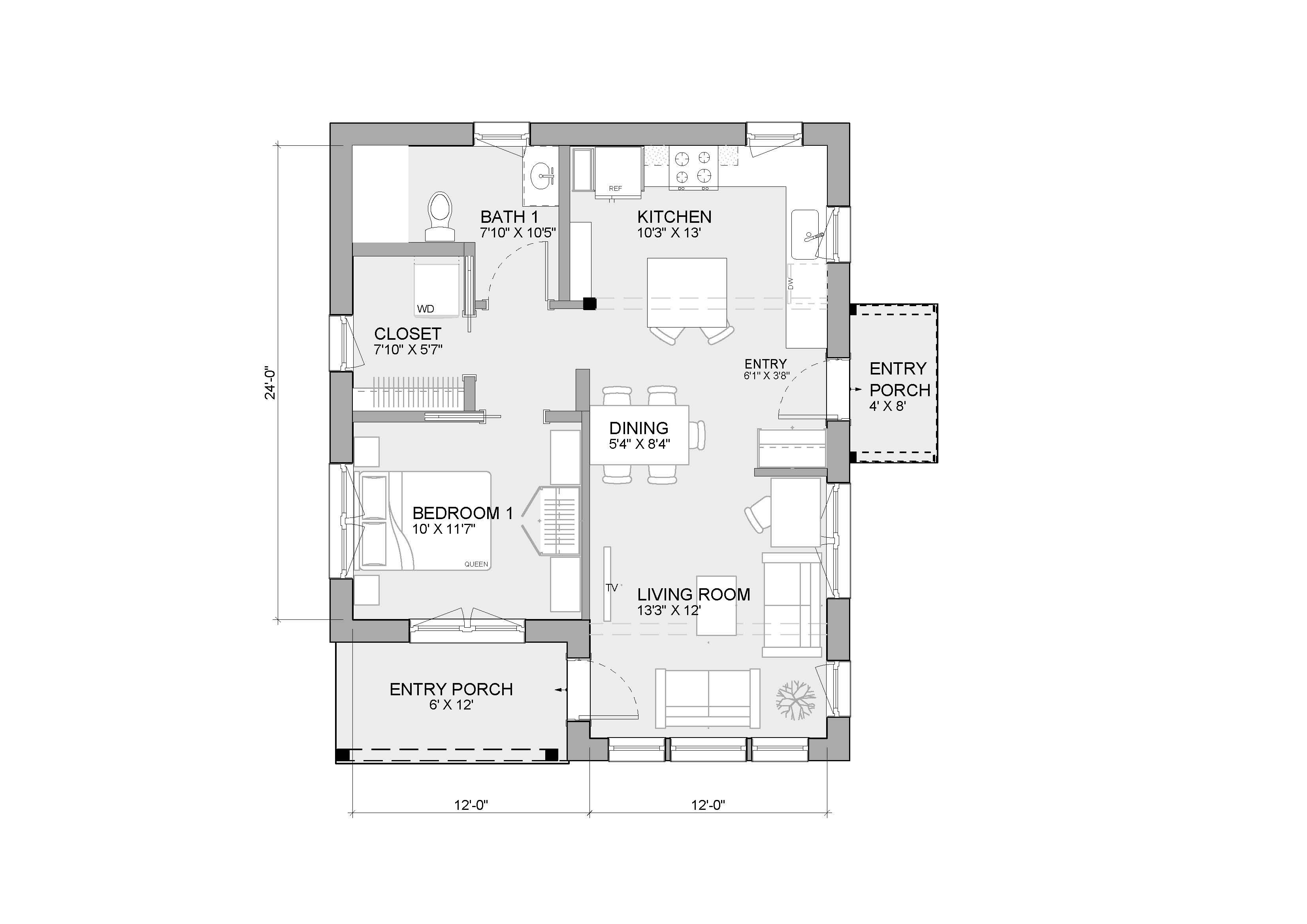
This ready-to-build mono-pitch Zum is perfect for small-home living or a single-level ADU. Enter through the bracketed entry into the open kitchen, dining, and living area with exposed posts and 14’ ceilings. Accessible from the living room is a covered porch where you can sip coffee in the morning and watch the sun rise. Next to the primary bathroom is a large walk-in closet with a convenient attached laundry area and plenty of storage.
- ManufacturerUnity Homes
- ModelZumette
- Base Price$170,000
- Size752 sq ft
- Bedrooms1
- Bathrooms1
- CategoryADU, Primary Residence
- LocationUSA
Back to directory