Zum Dal photo 1
Unity Homes
Zum Dal
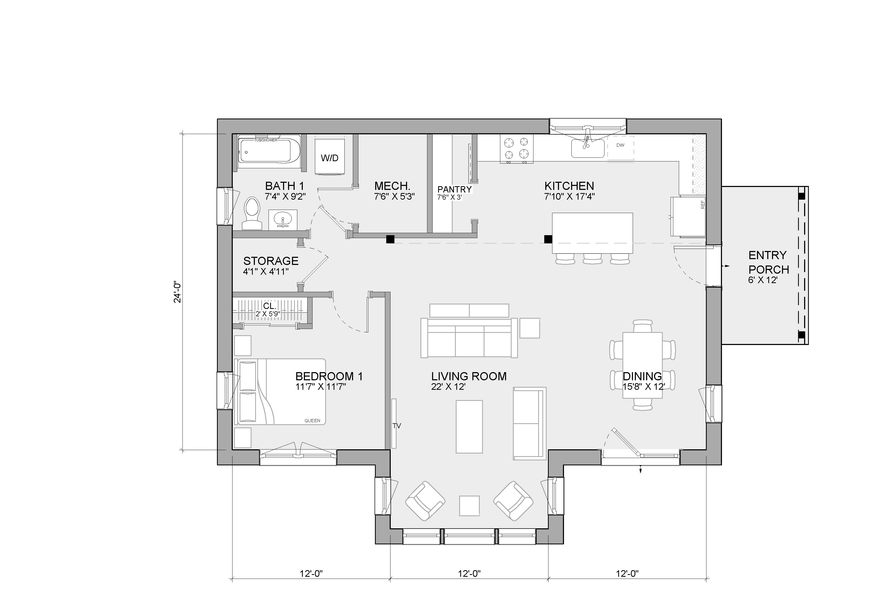
This mono-pitch single-level Zum brings together the best aspects of the Zum into one compact footprint. With its entrance adjacent to the side of the home with large transom windows, this design is ideal for land with a view. Enter through the covered porch into the open kitchen, dining, and living room with exposed posts and timbers, 14’ ceilings, and a modern bump out perfect for admiring the outdoors. There are light-filled views in both the public area and in the primary bedroom, a feature unique to the Zum, allowing for maximum intake of natural light throughout the seasons. Conveniently...
- ManufacturerUnity Homes
- ModelZum Dal
- Base Price$180,000
- Size1,092 sq ft
- Bedrooms1
- Bathrooms1
- CategoryPrimary Residence
- LocationUSA
Back to directory