Xyla Somn photo 1
Unity Homes
Xyla Somn
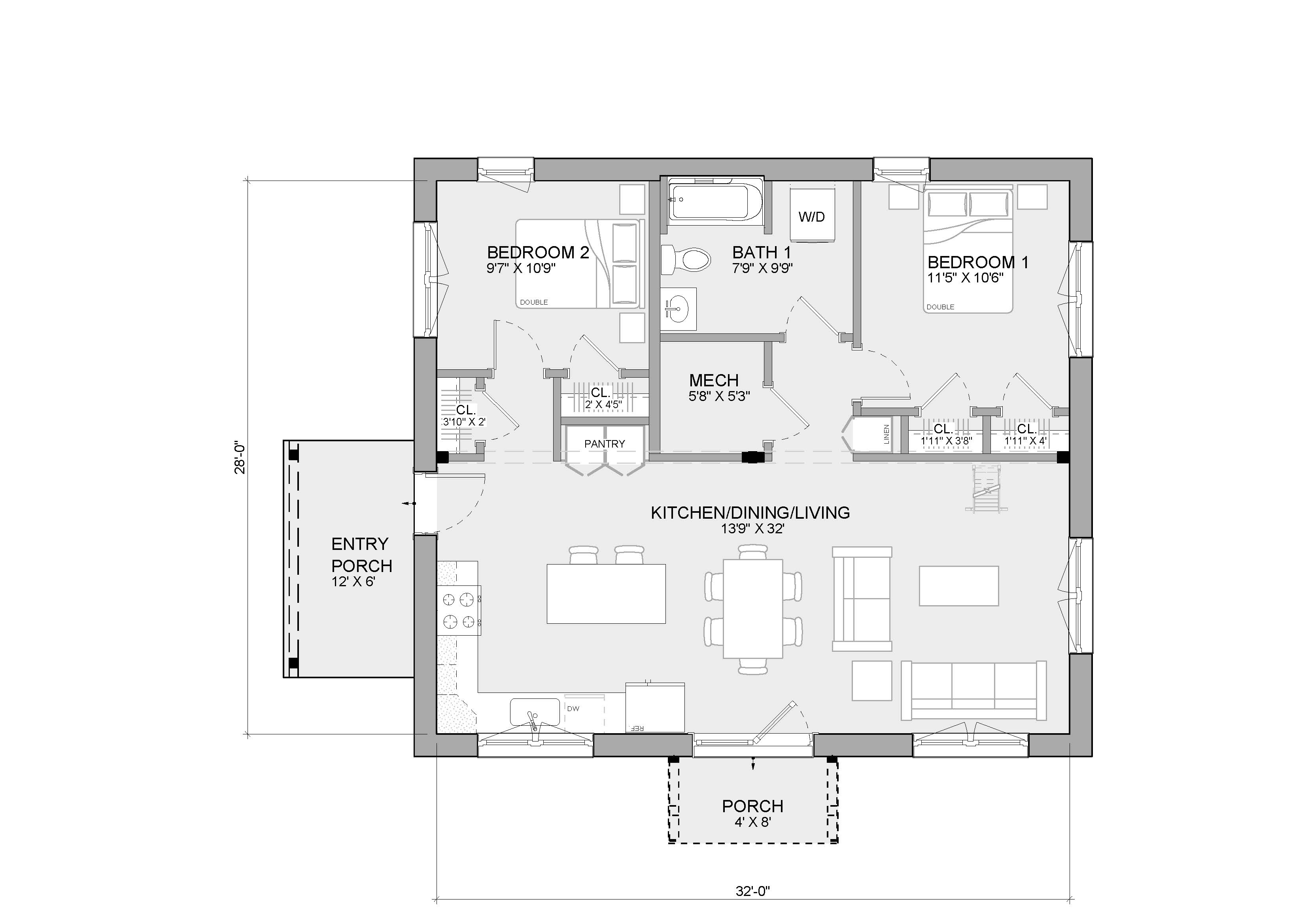
This gable-presenting Xyla has an endearing design well-suited as a starter home or second home. The covered porch and side yard bracketed entry add functional charm to its exterior. With a loft running parallel to the ridge, there is plenty of room for storage or to use as a versatile bonus space. The open kitchen, living, and dining areas have a vaulted ceiling and exposed timbers under a single eave. The primary bedroom has two separate closets, sharing a centralized bathroom and laundry nook with the secondary bedroom.
- ManufacturerUnity Homes
- ModelXyla Somn
- Base Price$170,000
- Size1,038 sq ft
- Bedrooms2
- Bathrooms1
- CategoryPrimary Residence
- LocationUSA
Back to directory