Xyla Lugn photo 1
Unity Homes
Xyla Lugn
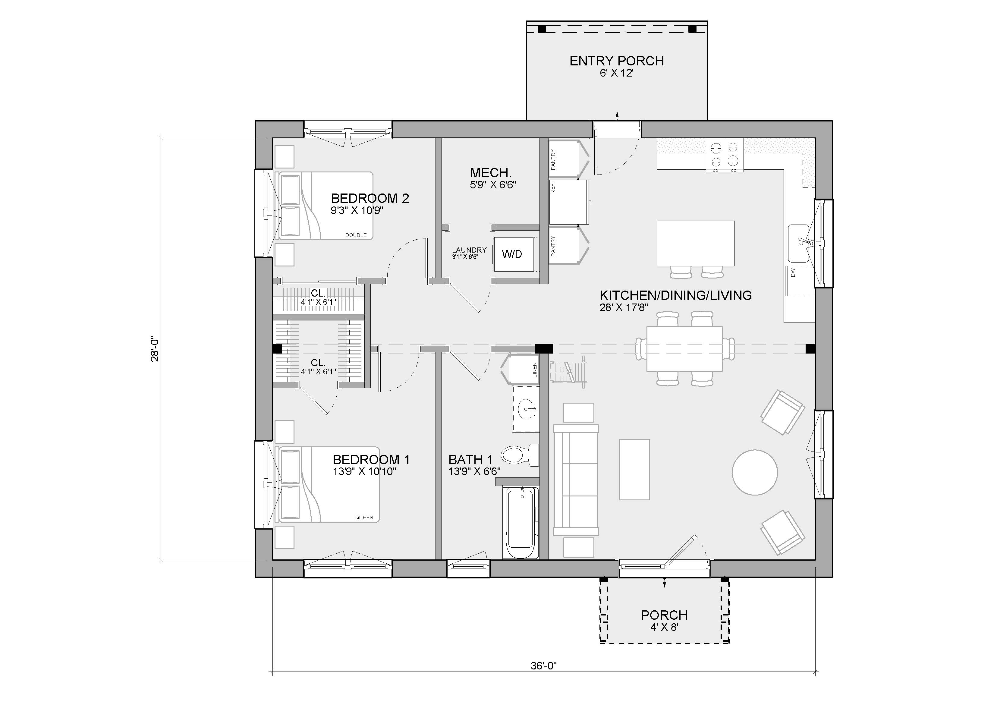
This eave-presenting Xyla is slightly larger than the other Xyla base model, well-suited as a starter home or second home. The covered porch and side yard bracketed entry add functional charm to the exterior. The open kitchen, living, and dining area feel grand, with an exposed view of the gable and ridge alongside the vaulted ceiling. Adding an optional library-style ladder provides access to a loft for a distinctive bonus area, or to use as additional storage. The primary bedroom has a walk-in closet and a shared bathroom between the secondary bedroom across the hall.
- ManufacturerUnity Homes
- ModelXyla Lugn
- Base Price$180,000
- Size1,159 sq ft
- Bedrooms2
- Bathrooms1
- CategoryPrimary Residence
- LocationUSA
Back to directory