Xyla Kram photo 1
Unity Homes
Xyla Kram
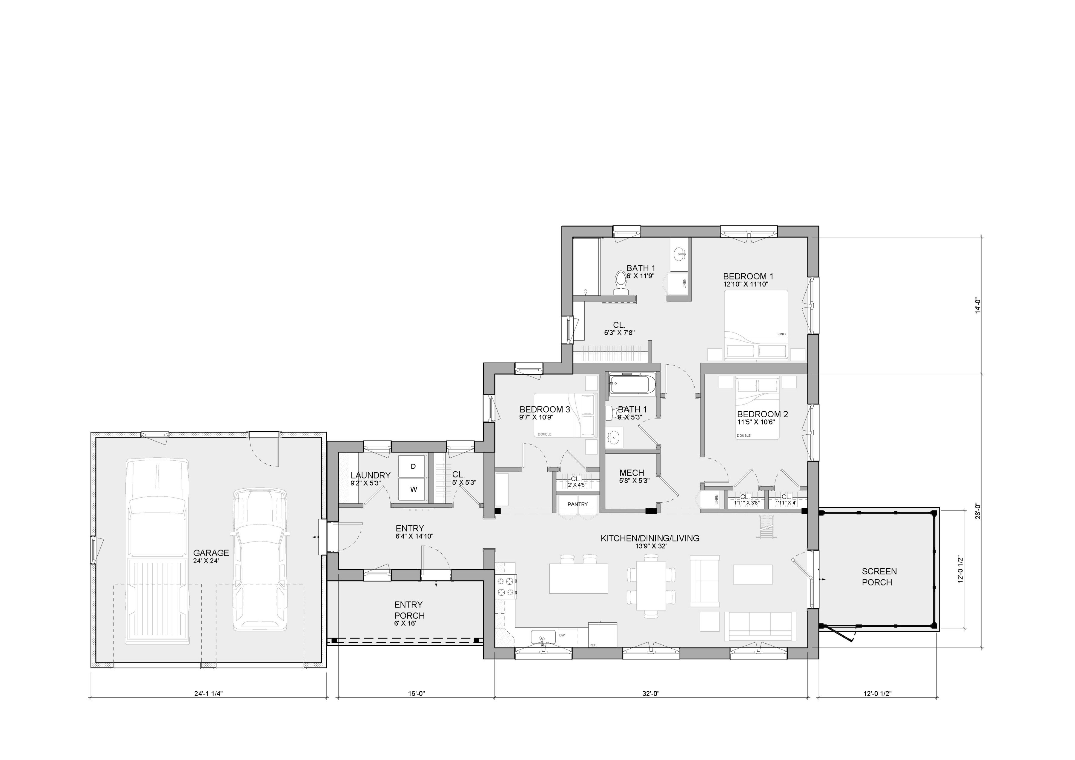
This eave-presenting Xyla has a quaint covered porch leading to the open kitchen, dining, and living area. The interior has vaulted ceilings with a loft and plenty of built-in storage. The living room leads into a three-season screen porch, providing an additional gathering space for family and friends. The vaulted primary bedroom is separated at the far end of the hallway, with a spacious bathroom and window-lit closet. The two secondary bedrooms share a centralized bathroom across from the laundry area, making single-floor laundry a breeze.
- ManufacturerUnity Homes
- ModelXyla Kram
- Base Price$315,000
- Size1,635 sq ft
- Bedrooms3
- Bathrooms2
- CategoryPrimary Residence
- LocationUSA
Back to directory