Varm Sala photo 1
Unity Homes
Varm Sala
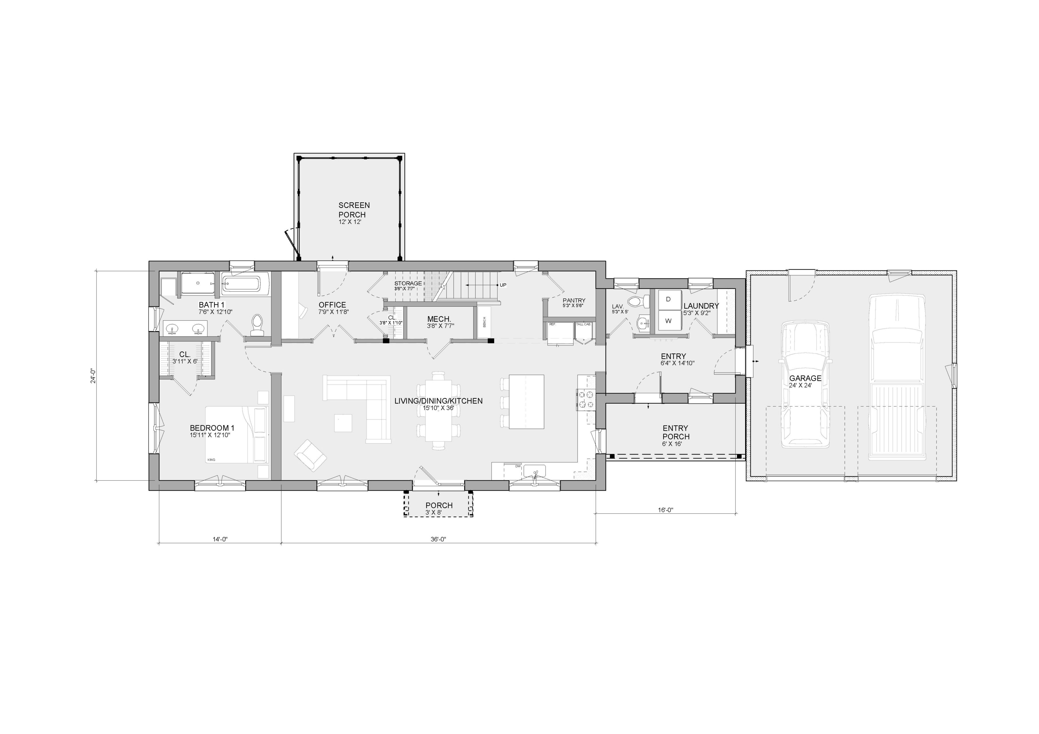
This eave-presenting Värm works well for large families or those who want extra space. Not only is there a sizeable addition to the core design, but there is also a garage, a connector, two porches, and a bracketed entry roof. The laundry area within the entry connector can double as a mud room for easy storage of shoes and coats. The kitchen is equipped with a large pantry, which is adjacent to the open dining and living area with 9’ ceilings and access to a three-season screened porch for a comfortable space to gather with friends and family. The primary...
- ManufacturerUnity Homes
- ModelVarm Sala
- Base Price$345,000
- Size2,607 sq ft
- Bedrooms4
- Bathrooms3
- CategoryPrimary Residence
- LocationUSA
Back to directory