Varm Granna photo 1
Unity Homes
Varm Granna
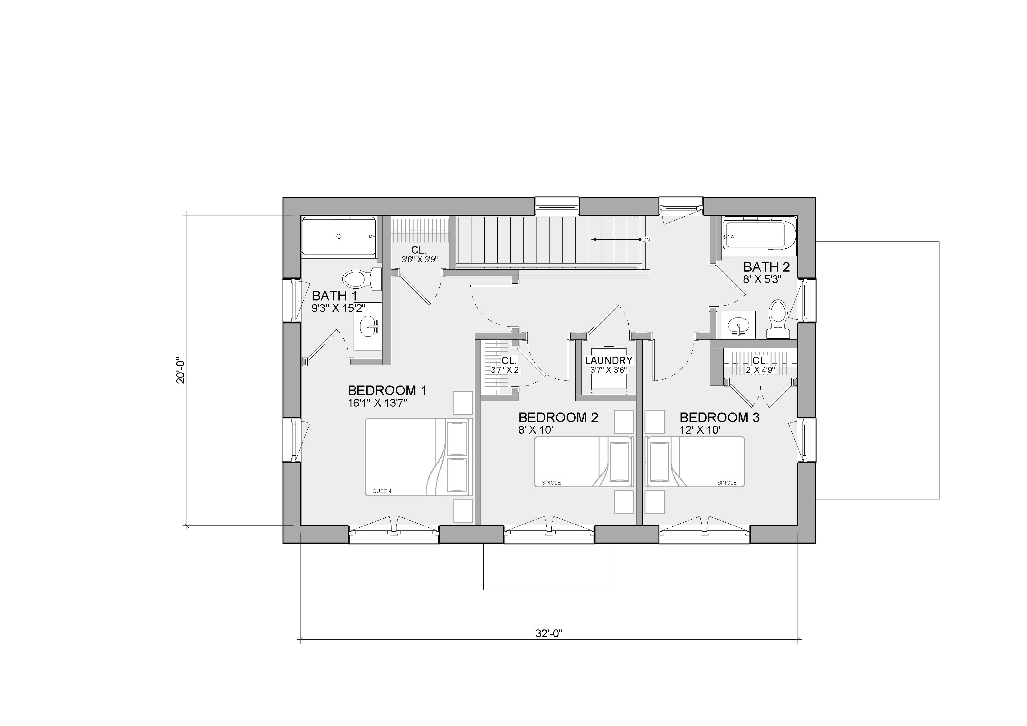
This gable-presenting Värm is a condensed version of the larger Värms , with an efficient floor plan pairing well with narrow lots. Enter through the large covered porch into an open kitchen, dining, and living area with 9’ ceilings, a built-in closet, open walls for artwork, and plenty of pantry space. A kitchen island works well for those who wish to entertain, with convenient side yard access for grilling. The laundry is on the second floor near the bedrooms for easy access. The primary bedroom is roomy, with flexible secondary bedroom space to convert to an office or guest room.
- ManufacturerUnity Homes
- ModelVarm Granna
- Base Price$190,000
- Size1,528 sq ft
- Bedrooms3
- Bathrooms3
- CategoryPrimary Residence
- LocationUSA
Back to directory