Varm Gavle photo 1
Unity Homes
Varm Gavle
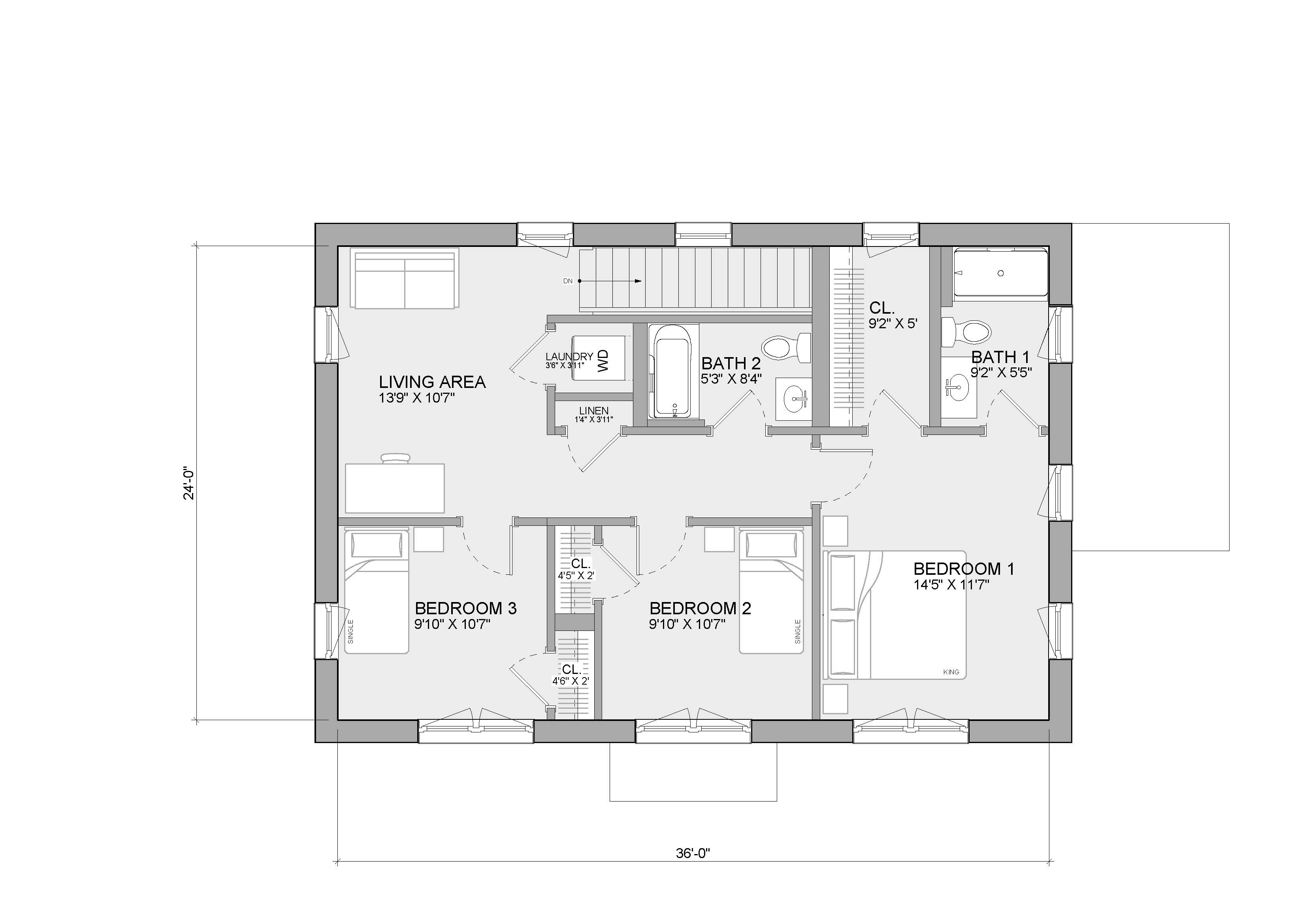
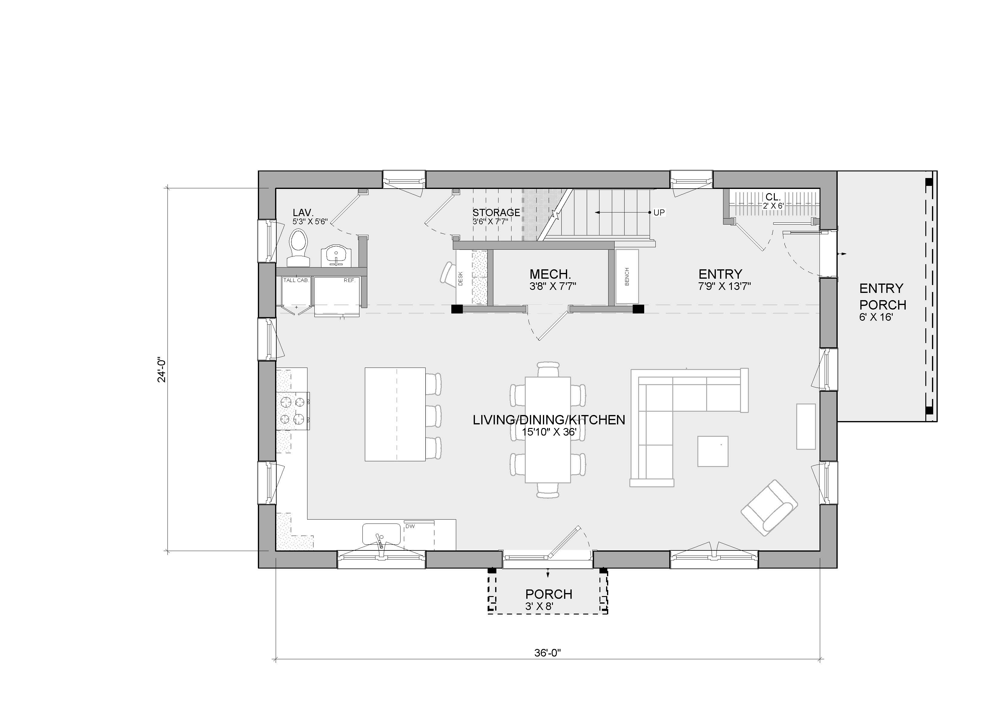
This gable-presenting Värm offers an ideal orientation of the living space towards any views, or fitting into a condensed urban lot requiring an efficient footprint. Enter through the bracketed entry roof into an open kitchen, dining, and living area with 9’ ceilings, visible interior timbers, and built-in closets. Space for a kitchen island works well for those who wish to entertain, with convenient side yard access for grilling and open walls for artwork. A unique storage nook abuts the staircase, ideal for housing collectibles, books, or bar supplies. The second floor has three bedrooms with ample flex space to convert...
- ManufacturerUnity Homes
- ModelVarm Gavle
- Base Price$225,000
- Size2,008 sq ft
- Bedrooms3
- Bathrooms3
- CategoryPrimary Residence
- LocationUSA
Back to directory