Tradd Trosta photo 1
Unity Homes
Tradd Trosta
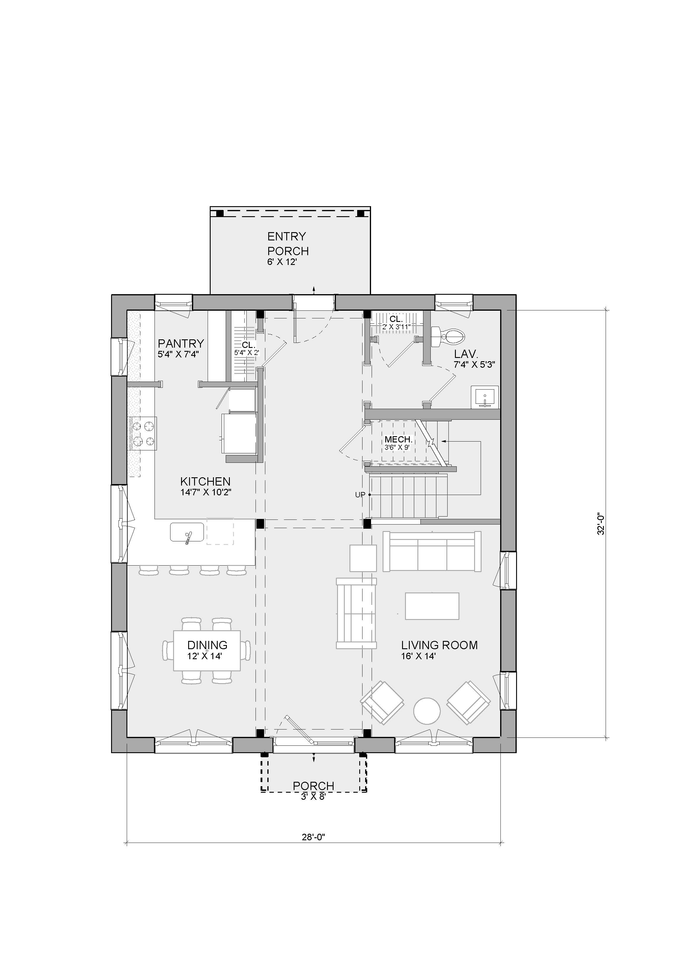
This gable-presenting Tradd has an effortless charm and the most elaborate exposed timber frame. Without dormers, the simplified roof provides cost savings and more space for future solar panels. The open main floor allows the primary areas to be separated while easily accessible from a central walkway, with a formal dining corner nestled between the kitchen and living areas. There is plenty of pantry and closet space on the first floor, providing extra storage. Take the switchback staircase to the second floor, where three sizeable bedrooms are removed from first-floor noise, offering additional flex space for family, guests, or an...
- ManufacturerUnity Homes
- ModelTradd Trosta
- Base Price$260,000
- Size2,076 sq ft
- Bedrooms3
- Bathrooms3
- CategoryPrimary Residence
- LocationUSA
Back to directory