Tradd Leka photo 1
Unity Homes
Tradd Leka
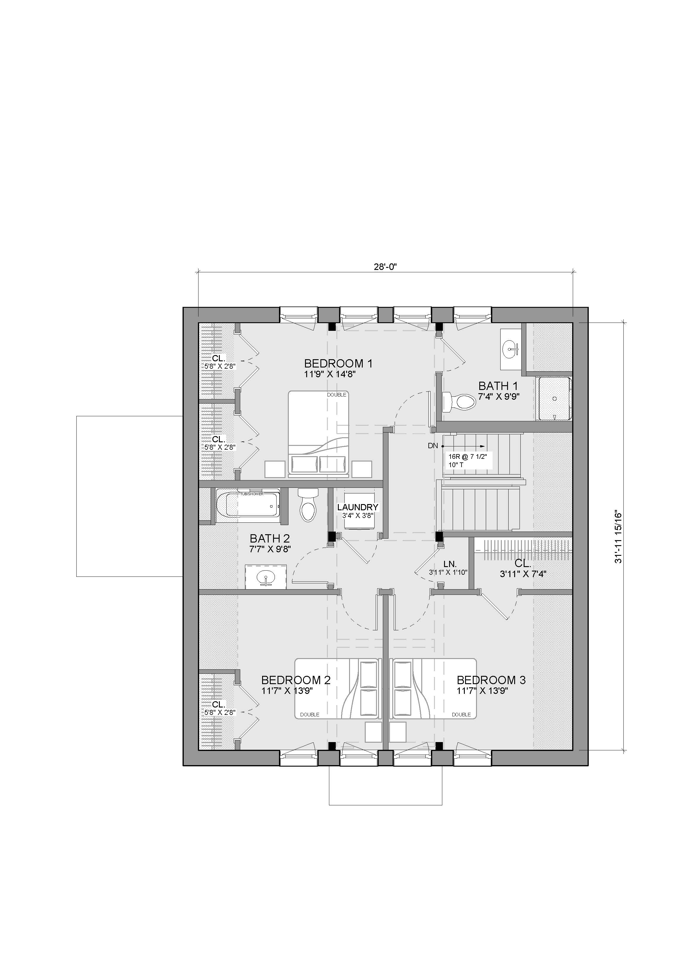
This eave-presenting Tradd has a simple yet charming feel as you walk through the main bracketed entry. Without dormers, the simplified roof comes with cost savings and easier installation of future solar panels. The open main floor has a formal dining corner, nestled between the kitchen and living areas, with an additional breakfast table nook near the windows. Adjacent to the kitchen is a covered porch for a short trek to sip your morning coffee. Take the switchback staircase to the second floor, where three sizeable bedrooms are removed from first-floor noise, offering additional flex space for family, guests, or...
- ManufacturerUnity Homes
- ModelTradd Leka
- Base Price$240,000
- Size2,076 sq ft
- Bedrooms3
- Bathrooms3
- CategoryPrimary Residence
- LocationUSA
Back to directory