Tradd Dela photo 1
Unity Homes
Tradd Dela
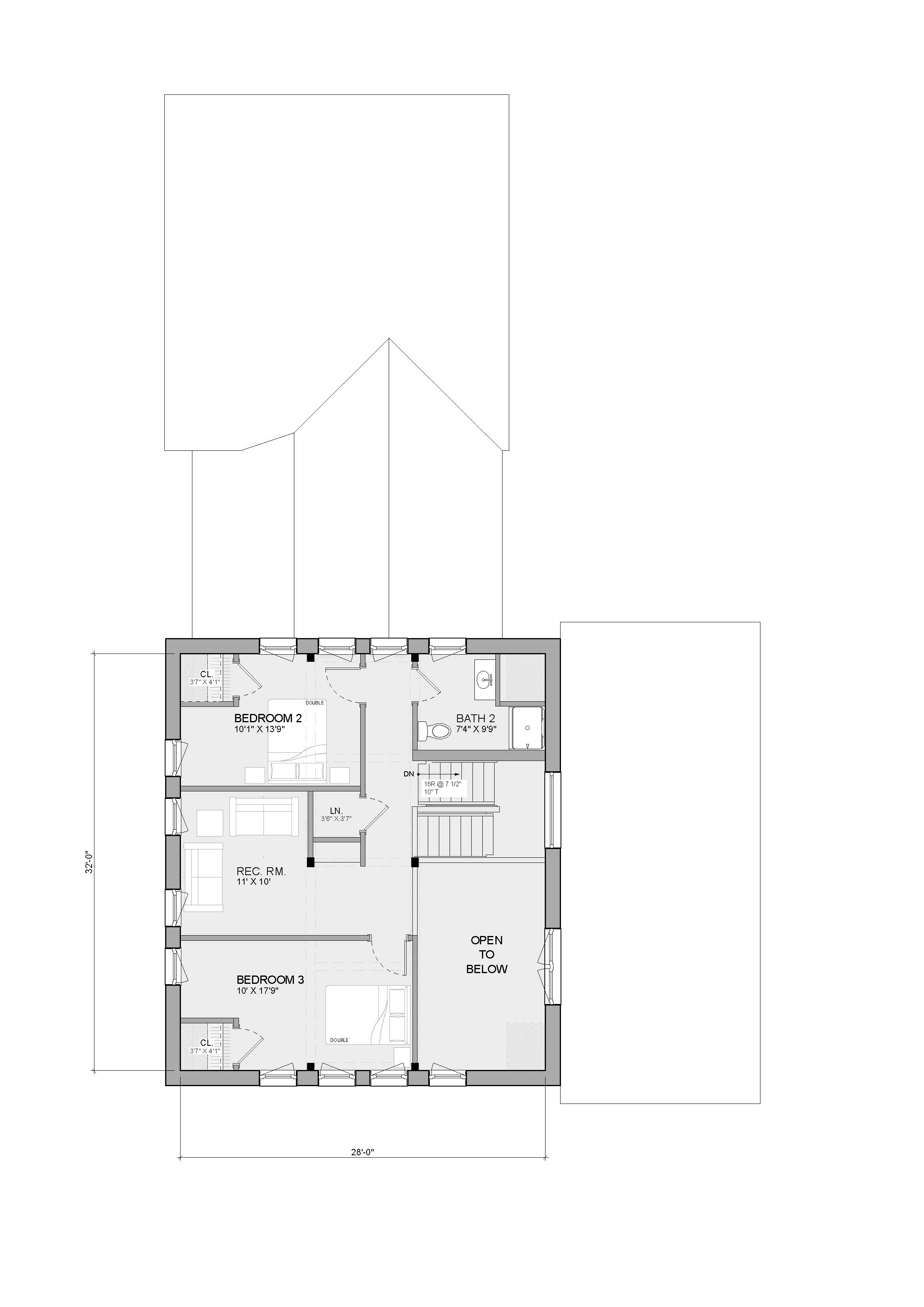
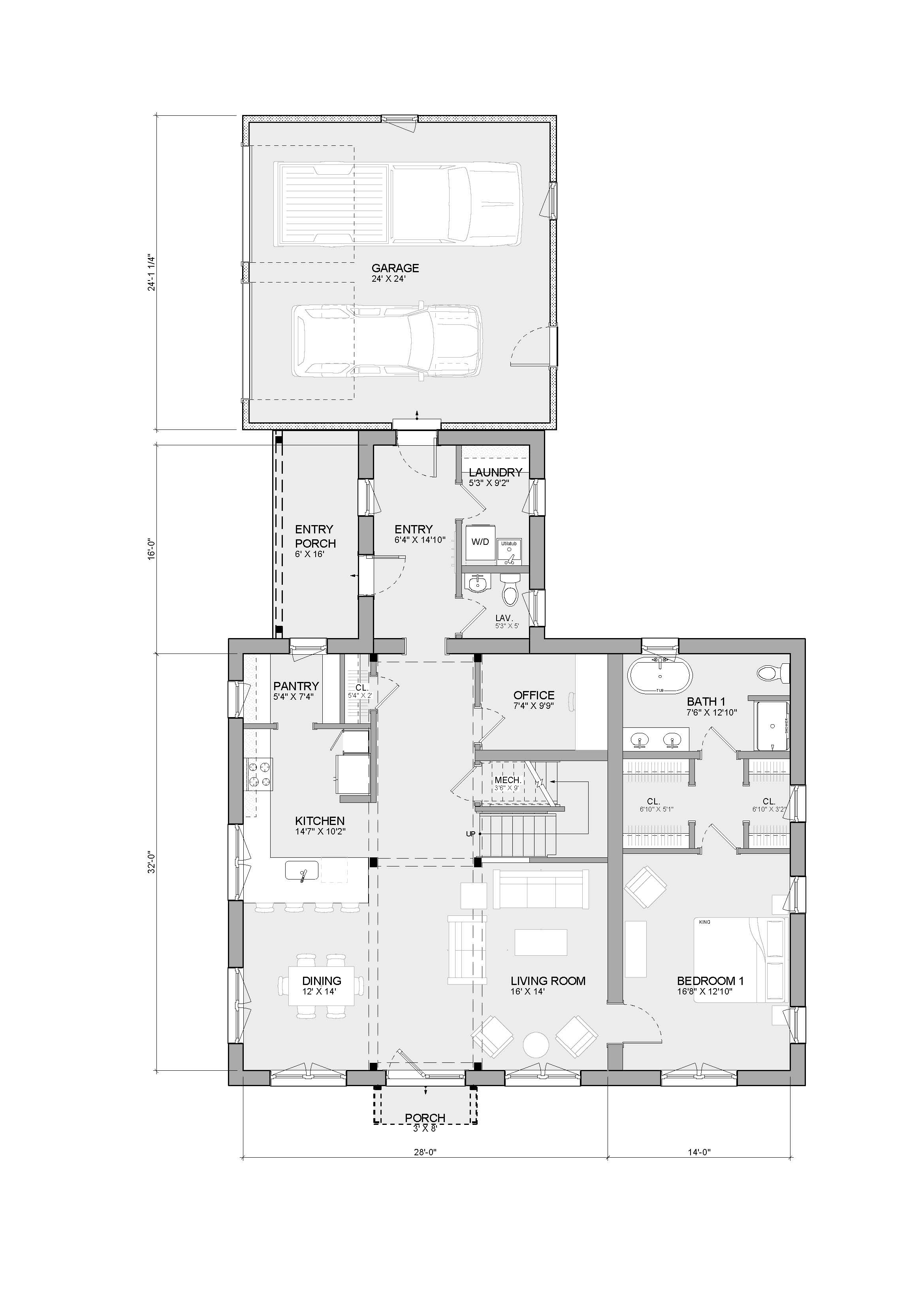
This gable-presenting Tradd has the highest square footage compared with other designs, ideal for families or those who want extra space. The entry porch and connector bridge the garage with the open main floor, containing a first-floor office and laundry area. An open kitchen features a butler’s pantry and informal eat-in counter separate from the formal dining area, a perfect combination for entertaining. For those who prefer single-level living, there is a spacious first-floor primary suite with two extravagant walk-in closets, a changing room, and a sizeable bathroom. Take the switchback staircase to the second floor with dormers, showcasing a...
- ManufacturerUnity Homes
- ModelTradd Dela
- Base Price$385,000
- Size2,785 sq ft
- Bedrooms3
- Bathrooms3
- CategoryPrimary Residence
- LocationUSA
Back to directory