Nano Liten photo 1
Unity Homes
Nano Liten
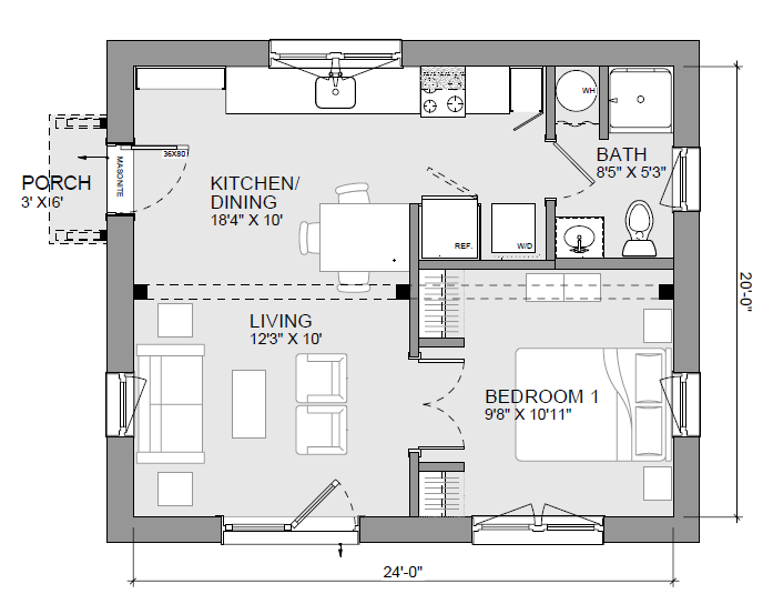
This ready-to-build compact Nano has a shallow roof pitch with simple lines and a vaulted living space. Enter through the bracketed entry into the open kitchen, dining, and living area where the kitchen sink overlooks the window for a pleasant view while doing dishes. The first-floor primary bedroom and primary bathroom are off the kitchen and living space. A large, practical storage loft is accessible with a pull-down stair, ideal for all your storage needs.
- ManufacturerUnity Homes
- ModelNano Liten
- Base Price$115,000
- Size586 sq ft
- Bedrooms1
- Bathrooms1
- CategoryPrimary Residence
- LocationUSA
Back to directory