The Salsa Box Tiny House Plans photo 1
Shelter Wise
The Salsa Box Tiny House Plans
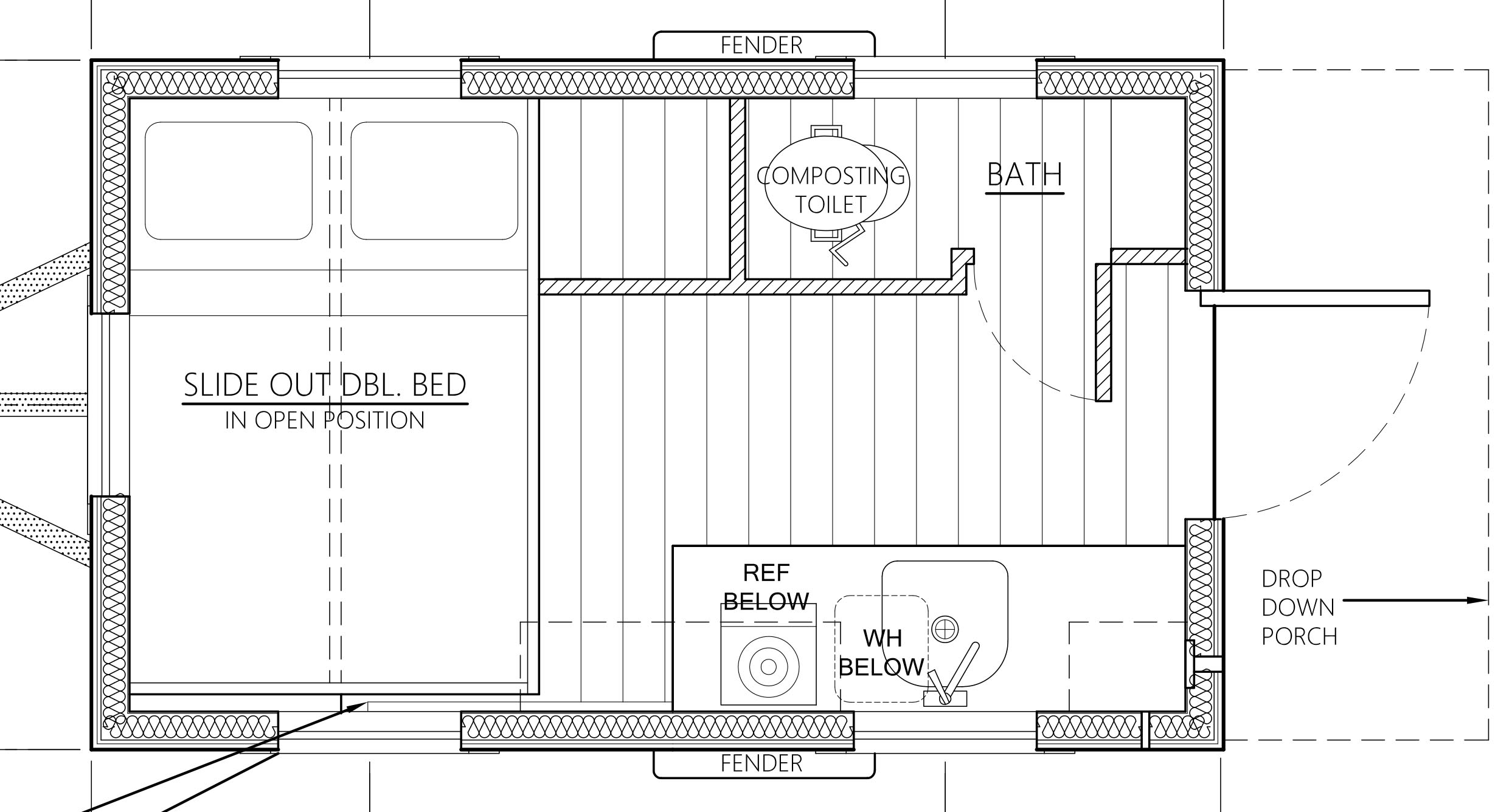
Description Requirements & Terms Description What the Salsa Box Tiny House Plans Include Trailer detail (including bolt hole connections, framing and axle placement, and thermal break detail) Detailed framing elevations for all sides Floor framing plan Full roof framing schedule “Hold Down” schedule Detailed roof and wall insulation detail Rain screen detail Flashing detail Window installation detail (including one skylight and two operable windows for cross ventilation) Floor plan including a double bed with an optional children’s bunk Exterior finish detail Suggested materials list for siding and framing Weight and Trailer Recommendations The dimensions are 7’4” x 12’2” on a...
- ManufacturerShelter Wise
- ModelThe Salsa Box Tiny House Plans
- Base Price$49
- Size93 sq ft
- BedroomsN/A
- BathroomsN/A
- CategoryADU, Guest House, Tiny Home, Multi-purpose Unit
- LocationUSA
Back to directory