The Hikari Box Tiny House Plans photo 1
Shelter Wise
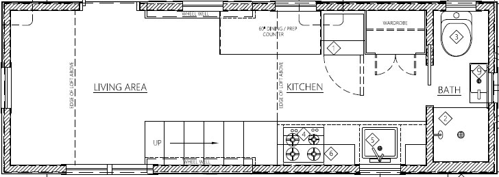
The Hikari Box Tiny House Plans
Description Requirements & Terms Description What the Plans Include Plans for a 24′ x 8.5′ foot modern tiny house design with eaves that extend out to 9 foot, six inches. Read PAD’s blog post on tiny house towing to understand more about tiny house width. Detailed interior and exterior elevation drawings for all sides Trailer connection details Wall framing elevations Roof framing plans Cross sections of wall, roof and floor Details for corners, windows, the door, and light block flashing Suggested materials list for siding and framing A basic wiring diagram Appliance placement and suggestions Double loft placements Full kitchen...
- ManufacturerShelter Wise
- ModelThe Hikari Box Tiny House Plans
- Base Price$99
- SizeN/A
- BedroomsN/A
- BathroomsN/A
- CategoryPrimary Residence
- LocationUSA
Back to directory