8.5x30ft Freemont photo 1
Seattle Tiny Homes
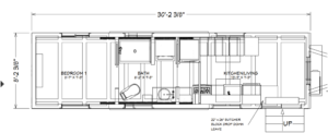
8.5x30ft Freemont
Metal Roof|Drop deck trailer|Lap siding and or Board and Batten|½ glass single entry door|Tape and textured interior walls and ceiling and LVP flooring|King sized loft with open cubby staircase and privacy wall|Full sized main floor bedroom with closet ( Or Queen size with walking space on one side only)|LED lights and Ceiling fan|Butcher block or quartz countertops|24” microwave vented above a 2 burner electric or propane cooktop|10cu fridge|Drop in stainless 24” sink|Propane on demand hot water|Mini Split with heat and A/C|Flush toilet|Walk in shower with acrylic surround and shower rod|Magic chef All in one washer and dryer with cabinet above|24”...
- ManufacturerSeattle Tiny Homes
- Model8.5x30ft Freemont
- Base Price$1
- SizeN/A
- BedroomsN/A
- BathroomsN/A
- CategoryGuest House
- LocationUSA
Back to directory