Homestead 6 | 19 Model photo 1
Phoenix Haus
Homestead 6 | 19 Model
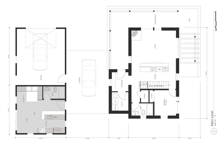
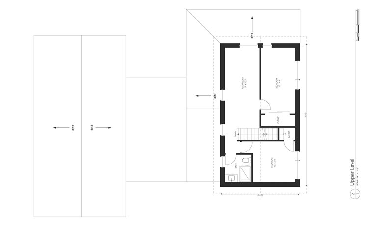
Elevate your lifestyle with the smart design of the H6 | 19 – a modern sanctuary featuring a detached ADU, garage, carport, and an inviting open kitchen/living space. Upstairs, discover bedrooms that offer the perfect retreat. Experience the pinnacle of contemporary living. First-level floor plan Detached one bedroom ADU and garage. A middle breezeway/carport connecting to the main house. The main house's lower level has an open kitchen and living room, one bedroom and bathroom. Second-level The upper level has two bedrooms, one bathroom and a flex space.
- ManufacturerPhoenix Haus
- ModelHomestead 6 | 19 Model
- Base Price$239,385
- Size1,900 sq ft
- Bedrooms3
- Bathrooms2
- CategoryADU, Primary Residence
- LocationUSA
Back to directory