Homestead 5 | 15 Model photo 1
Phoenix Haus
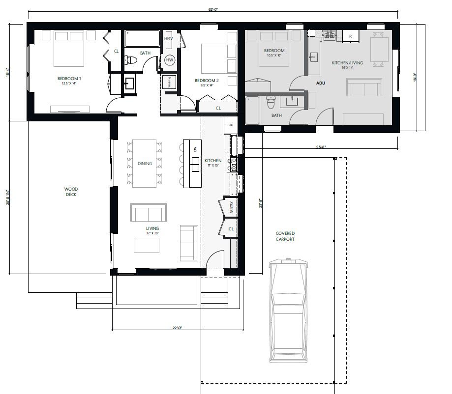
Homestead 5 | 15 Model
Discover modern simplicity in this single-level floor plan – a sleek design that combines elegance with practicality. This residence features a one-bedroom attached dwelling unit and a shared carport, emphasizing convenience and style. Inside, the main living space boasts an open living and kitchen area, accompanied by two bedrooms and a well-appointed bathroom. Welcome to a home that effortlessly blends modern aesthetics with everyday functionality. First-level floor plan Main house features an open living and kitchen area, two bedrooms and one bathroom. The ADU is attached and has it's own bedroom, kitchen, and living area.
- ManufacturerPhoenix Haus
- ModelHomestead 5 | 15 Model
- Base PriceN/A
- Size1,500 sq ft
- Bedrooms2
- Bathrooms1
- CategoryADU, Primary Residence
- LocationUSA
Back to directory