Homestead 2 | 7 Model photo 1
Phoenix Haus
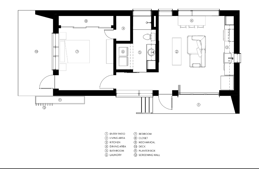
Homestead 2 | 7 Model
The H2|7 is a 1 bedroom 1 bath Accessory Dwelling Unit (ADU) delivers exceptional energy-saving performance in Colorado. This 700 square foot model is a perfect backyard ADU and is built with high-quality, nontoxic materials. This ADU package prioritizes health and sustainability but also offers a refined, modern look. All our ADU models are ready to ship to your door as a high-performance, fully insulated, Passive House certifiable system, or in a streamlined, code compliant package.We are proud to be at the forefront of bringing passive house, luxury prefab mountain homes to Colorado, Utah, Idaho, Arizona and New Mexico.
- ManufacturerPhoenix Haus
- ModelHomestead 2 | 7 Model
- Base Price$105,000
- Size692 sq ft
- Bedrooms1
- Bathrooms1
- CategoryADU, Primary Residence
- LocationUSA
Back to directory