The Prefab Directory
Directory
About
Terms
Moon photo 1
Orbit Homes
Moon
N/A
Manufacturer
Orbit Homes
Model
Moon
Base Price
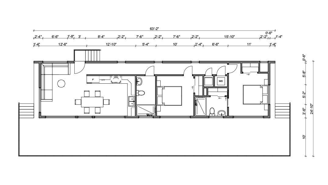
$295,000
Size
900 sq ft
Bedrooms
N/A
Bathrooms
N/A
Category
Primary Residence
Location
Canada
Open Model Listing
Back to directory