The Prefab Directory
Directory
About
Terms
Comet photo 1
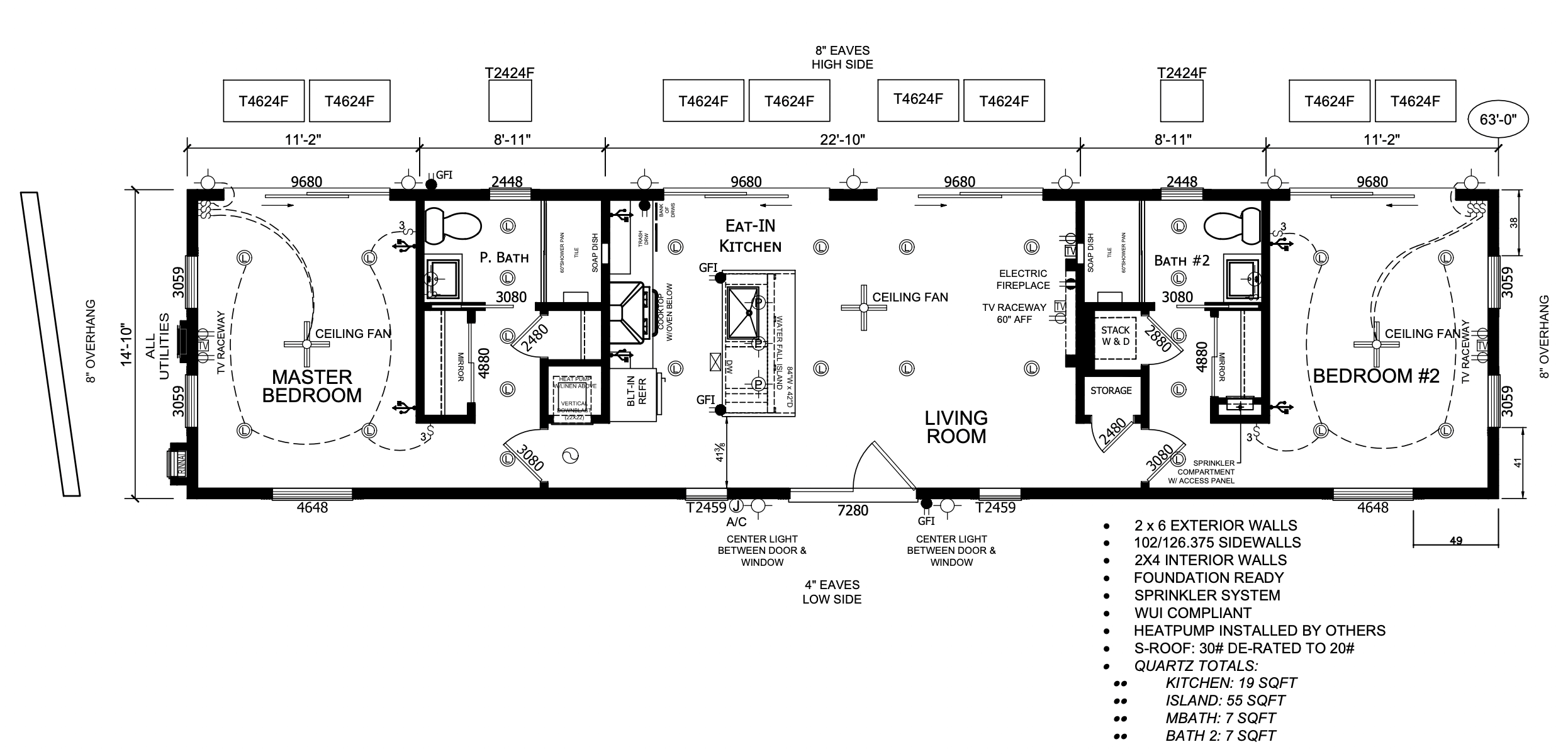
Orbit Homes
Comet
N/A
Manufacturer
Orbit Homes
Model
Comet
Base Price
$305,000
Size
934 sq ft
Bedrooms
N/A
Bathrooms
N/A
Category
Primary Residence
Location
Canada
Open Model Listing
Back to directory