Retreat Cape Cod Modular Home (Unfinished 2nd Floor) photo 1
Next Modular
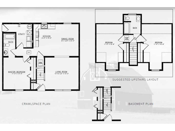
Retreat Cape Cod Modular Home (Unfinished 2nd Floor)
The Home-Only price includes the home built to Standard Specifications, INCLUDING current Material Surcharges, sitting at the factory ready to be delivered to your lot. Estimates for delivering & setting the home on your lot are not included in the Home-Only price, but we can estimate and include these costs for you. Please Contact Us for further details, or Click Here to read more about our Home-Only process. Pictures may show additional options and upgrades that are not included in the Home-Only price.,The “Turn-key” pricing includes everything in the Home-Only price, plus ESTIMATES for what the delivery, setting, installation, “marriage...
- ManufacturerNext Modular
- ModelRetreat Cape Cod Modular Home (Unfinished 2nd Floor)
- Base Price$127,428
- Size896 sq ft
- Bedrooms1
- Bathrooms1
- CategoryPrimary Residence
- LocationUSA
Back to directory