Hillcrest 7740 Ranch Modular Home photo 1
Next Modular
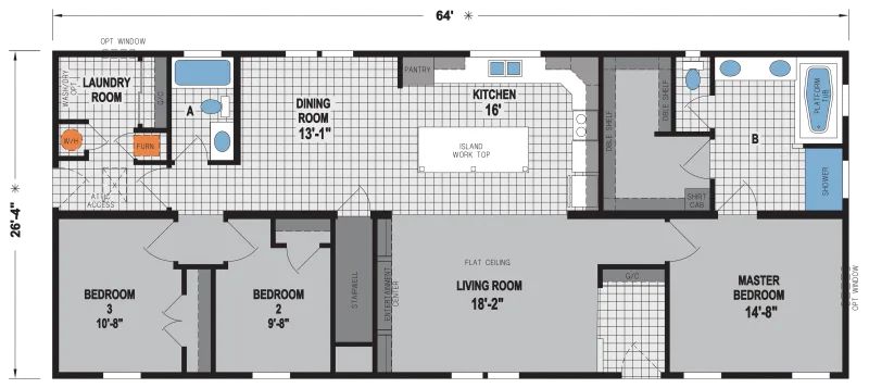
Hillcrest 7740 Ranch Modular Home
The Home-Only price includes the home built to Standard Specifications, INCLUDING current Material Surcharges, sitting at the factory ready to be delivered to your lot. Estimates for delivering & setting the home on your lot are not included in the Home-Only price, but we can estimate and include these costs for you. Please Contact Us for further details, or Click Here to read more about our Home-Only process. Pictures may show additional options and upgrades that are not included in the Home-Only price.,The “Turn-key” pricing includes everything in the Home-Only price, plus ESTIMATES for what the delivery, setting, installation, “marriage...
- ManufacturerNext Modular
- ModelHillcrest 7740 Ranch Modular Home
- Base Price$140,923
- Size1,685 sq ft
- Bedrooms3
- Bathrooms2
- CategoryPrimary Residence
- LocationUSA
Back to directory