Penn Tallboy photo 1
Module Housing
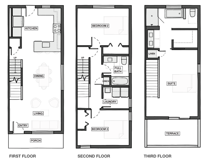
Penn Tallboy
The Penn Tallboy features an open and spacious living area on the first floor. The top two floors are complete with 3 sizable bedrooms, 2 full baths, a laundry room and terrace.
- ManufacturerModule Housing
- ModelPenn Tallboy
- Base PriceN/A
- SizeN/A
- Bedrooms3
- Bathrooms3
- CategoryPrimary Residence
- LocationUSA
Back to directory