Noble photo 1
Module Housing
Noble
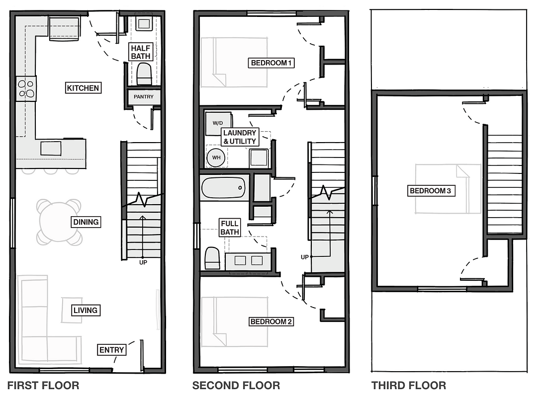
The Noble is a new model that builds upon our popular Haven+ model with a spacious third floor. The top floor can serve as a third bedroom, office, or den. The Noble also offers the opportunity for a rooftop deck in the back. If you value a master suite over a spacious laundry room, check out the Haven +.
- ManufacturerModule Housing
- ModelNoble
- Base PriceN/A
- SizeN/A
- Bedrooms3
- Bathrooms3
- CategoryPrimary Residence
- LocationUSA
Back to directory