412 Flat Sixplex photo 1
Module Housing
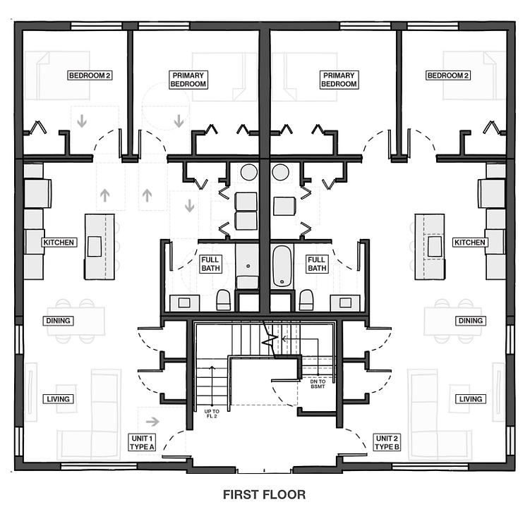
412 Flat Sixplex
The 412 Flat Sixplex is a 6 unit multifamily model featuring a super-functional 2 bedroom unit with an open kitchen, dining, and living space. Designed as a sixplex, this floor plan works best in condo form and provides either homeowners or real estate investors multiple units in one building.
- ManufacturerModule Housing
- Model412 Flat Sixplex
- Base PriceN/A
- SizeN/A
- Bedrooms2
- Bathrooms2
- CategoryPrimary Residence
- LocationUSA
Back to directory