The Ranch photo 1
Mighty Small Homes
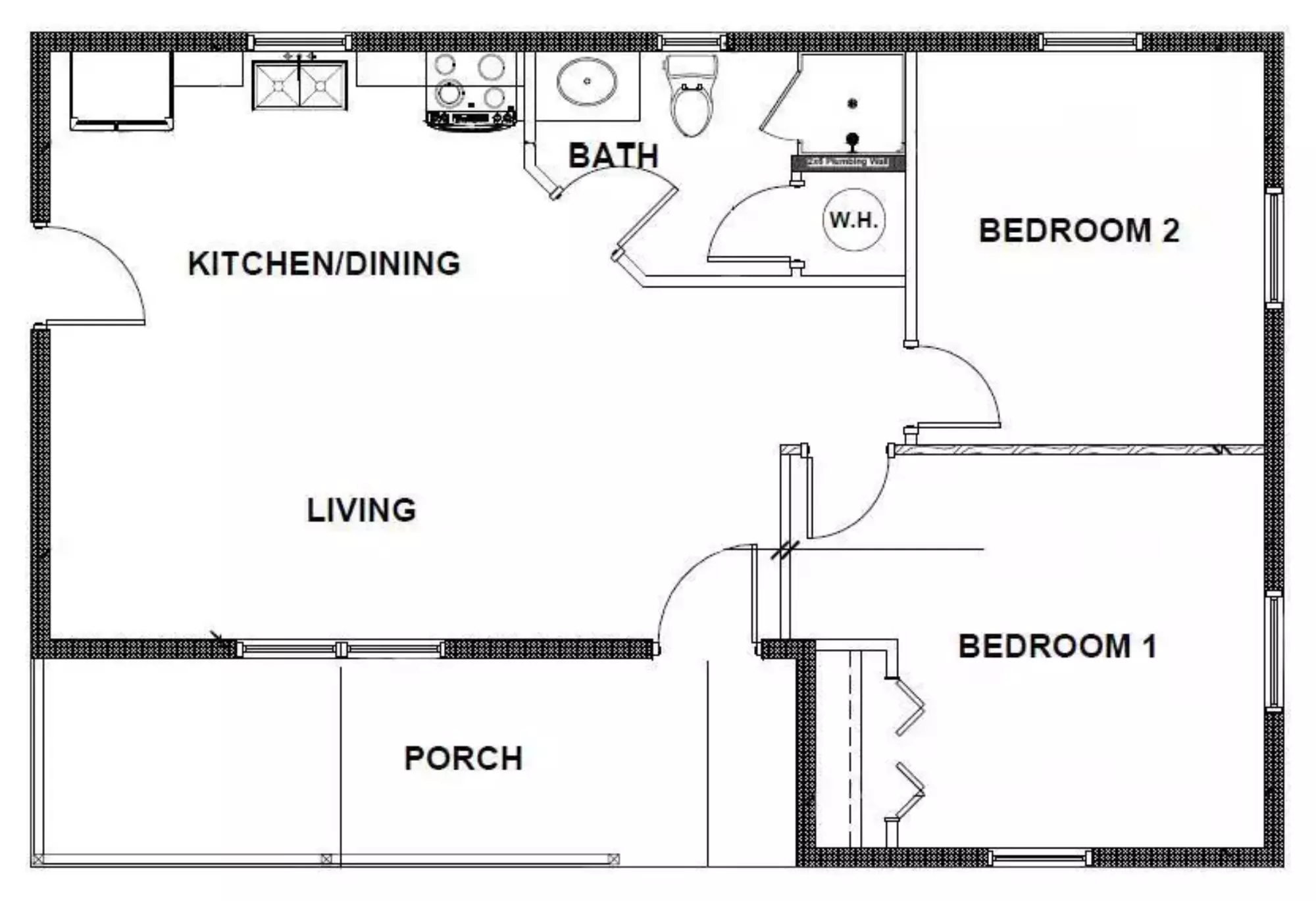
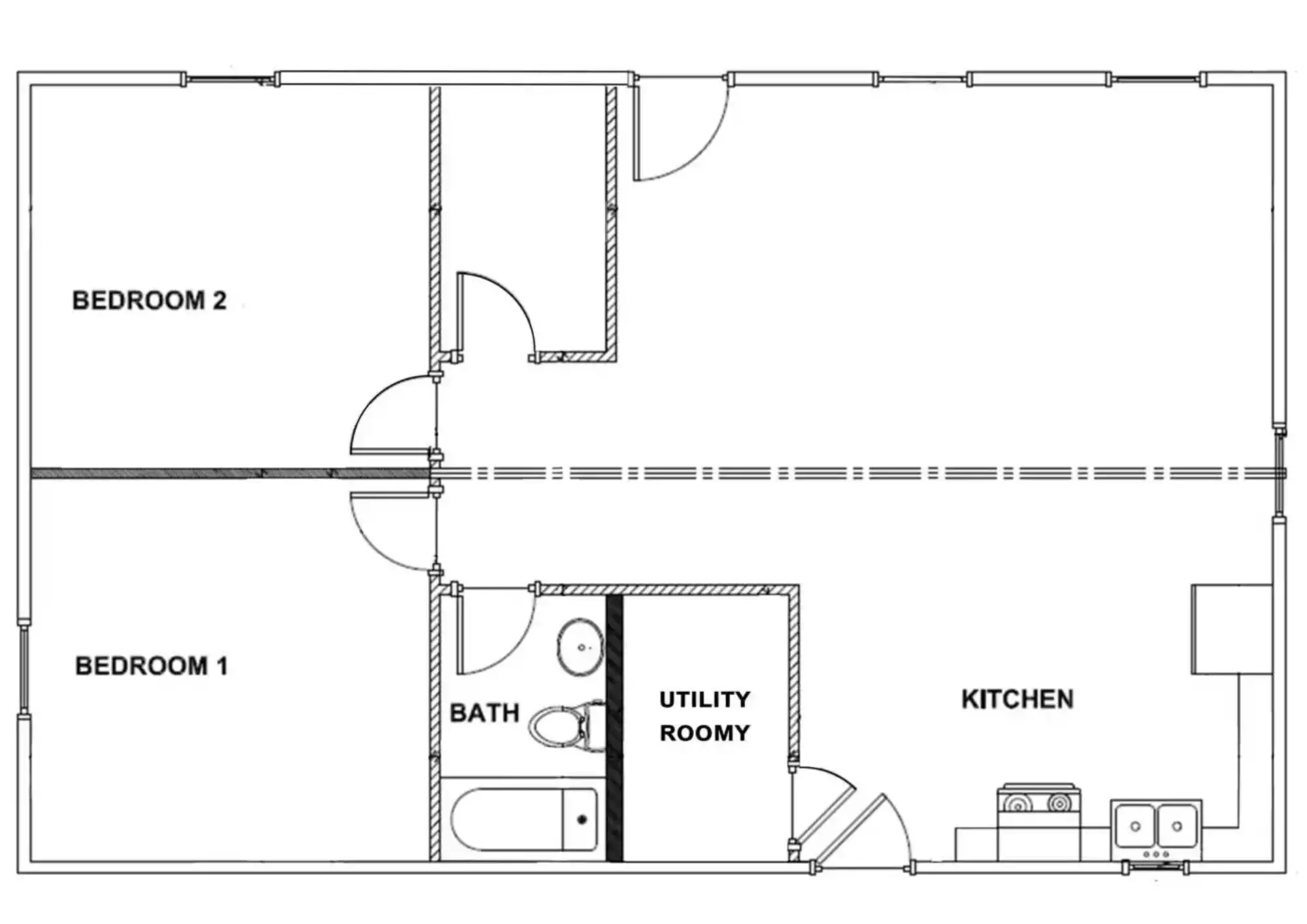
The Ranch
A minimalist’s dream come true, it’s hard to beat the Ranch house kit for classic style, simplicity, and the versatility of open or traditional layout options.
- ManufacturerMighty Small Homes
- ModelThe Ranch
- Base Price$69,792
- SizeN/A
- Bedrooms418752
- BathroomsN/A
- CategoryPrimary Residence
- LocationUSA
Back to directory