The Cottage photo 1
Mighty Small Homes
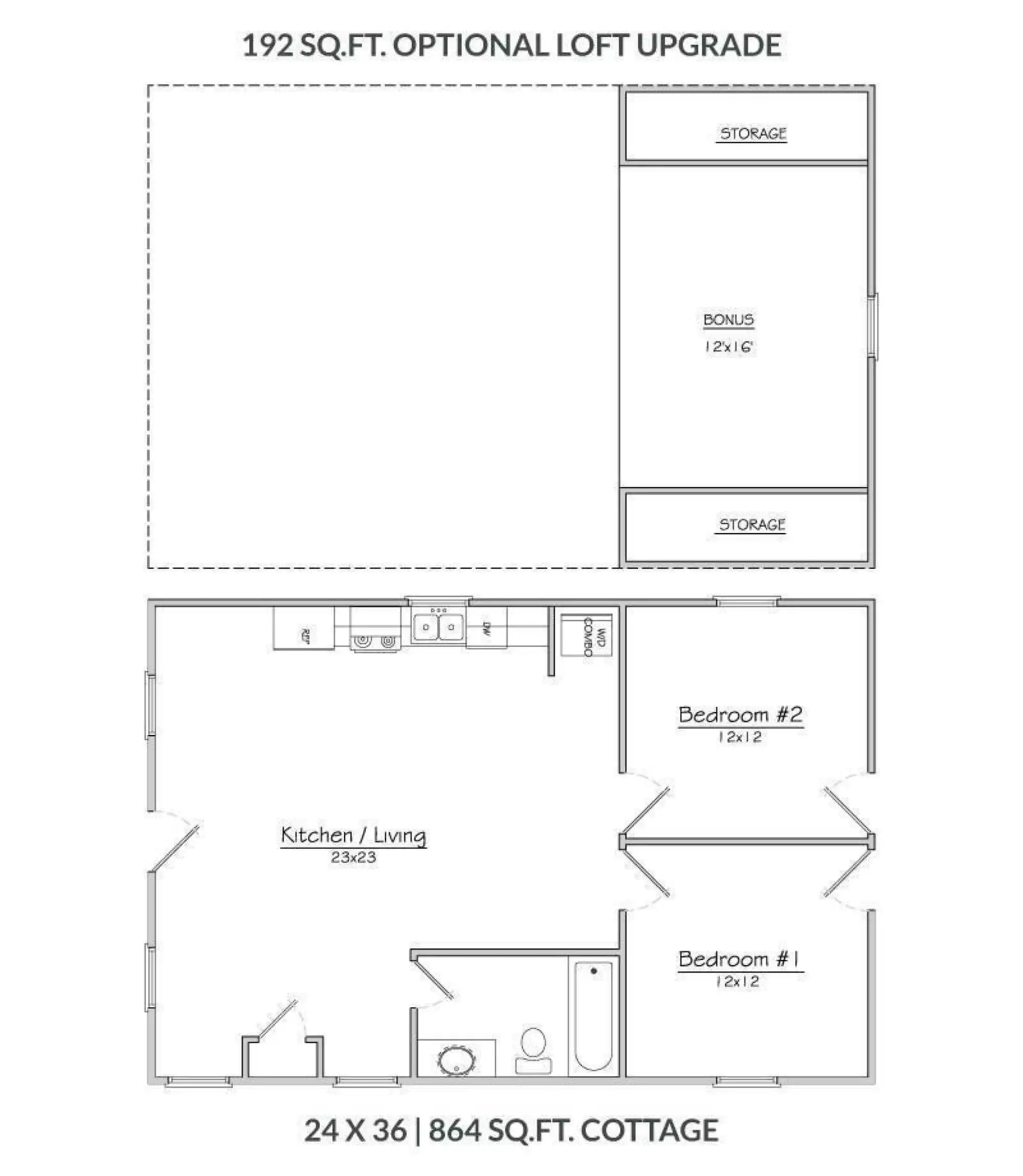
The Cottage
Cozy and quiet, our energy efficient Cottage house kits can easily be customized to include a loft and beautifully pitched roofs.
- ManufacturerMighty Small Homes
- ModelThe Cottage
- Base Price$69,500
- Size864 sq ft
- Bedrooms417000
- BathroomsN/A
- CategoryPrimary Residence
- LocationUSA
Back to directory