The A-Frame photo 1
Mighty Small Homes
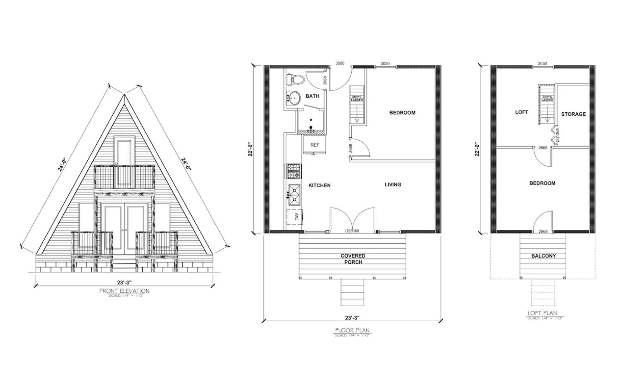
The A-Frame
The A-frame eliminates interior load-bearing walls, offering complete freedom to configure room layouts to your preference. The spaciousness of our newest model makes it ideal for a vacation home on the lake or in the mountains.
- ManufacturerMighty Small Homes
- ModelThe A-Frame
- Base Price$44,550
- Size528 sq ft
- Bedrooms267300
- BathroomsN/A
- CategoryPrimary Residence
- LocationUSA
Back to directory