The Avalon photo 1
Kubed Living
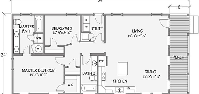
The Avalon
Where Modular Construction Meets Traditional Style Our Contemporary Farm Houses are wood-frame and come with high-quality finishes. Our Standard Finishes Include: Board and Batten Exterior Black Shingle Roof Black- Trim Exterior Windows and Doors Metal Railing on Porch Custom Cabinets Luxury Vinyl Flooring Stone or Quartz Countertops Stainless Steel Appliances Farm-style kitchen sink Dedicated Laundry room Recessed Lightning Nickel Hardware Throughout At Least One Bathtub in Home Price Includes​ Delivery and Installation Onsite Finnishes Availability These homes are only available for sale in the Mid-West, South East, and Southern Continental US. -We offer farm-style duplexes -Builder/Developer Discounts are available for...
- ManufacturerKubed Living
- ModelThe Avalon
- Base Price$265,000
- Size1,152 sq ft
- Bedrooms2
- Bathrooms2
- CategoryGuest House, Primary Residence
- LocationUSA/Europoe
Back to directory