IT POD photo 1
IT House
IT POD
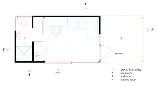
The compact footprint of the IT Pod gives it the flexibility to fit on a range of sites, particularly when space is limited. With roughly the dimensions of a single-car garage, the IT Pod is designed to be able to replace existing accessory structures or it can be built as a detached accessory dwelling unit. The IT Pod provides the opportunity to affordably add private and acoustically controlled space on a property while retaining exterior space for outdoor patios and landscaping. With large sliding glass doors, the IT Pod merges interior with exterior spaces, with an option to extend the...
- ManufacturerIT House
- ModelIT POD
- Base PriceN/A
- Size200 sq ft
- BedroomsN/A
- BathroomsN/A
- CategoryADU, Guest House, Tiny Home, Multi-purpose Unit
- LocationUSA
Back to directory