IT COURT photo 1
IT House
IT COURT
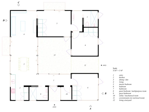
The IT Court is for those with the space to maximize the allowable area of an accessory dwelling unit. Living spaces and bedrooms wrap around a 320sf central courtyard offering private exterior space in a range of site conditions and providing ample amounts of natural daylighting through various times of the day. Large sliding glass doors connect interior living and sleeping areas to outdoor living rooms, increasing the usable area of the house. The IT Court can be accessed from each elevation making it adaptable to a range of site conditions and access directions. The design includes a roof-mounted solar...
- ManufacturerIT House
- ModelIT COURT
- Base PriceN/A
- Size1,190 sq ft
- BedroomsN/A
- BathroomsN/A
- CategoryADU, Primary Residence
- LocationUSA
Back to directory