Twin Homes – 2 story – Rabbit photo 1
Irontown Homes
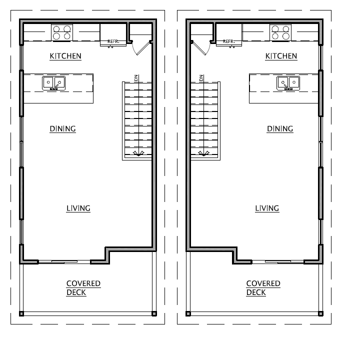
Twin Homes – 2 story – Rabbit
For a tighter project w/ higher density and a lower sale price, this 2 story plan can offer an affordable alternative. Included top and bottom front decks give character and an outdoor living space to these sweet units.
- ManufacturerIrontown Homes
- ModelTwin Homes – 2 story – Rabbit
- Base PriceN/A
- Size988 sq ft
- Bedrooms2
- BathroomsN/A
- CategoryPrimary Residence
- LocationUSA
Back to directory