Studio - B photo 1
Hygge Supply
Studio - B
N/A
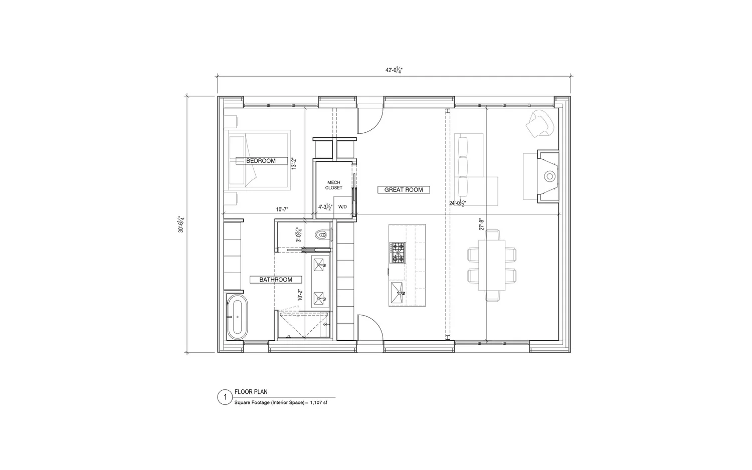
- ManufacturerHygge Supply
- ModelStudio - B
- Base Price$373,000
- SizeN/A
- BedroomsN/A
- BathroomsN/A
- CategoryGuest House, Primary Residence
- LocationUSA
Back to directory
Studio - B photo 1
Hygge Supply
N/A