2 Bedroom 1.5 Bath A photo 1
Hygge Supply
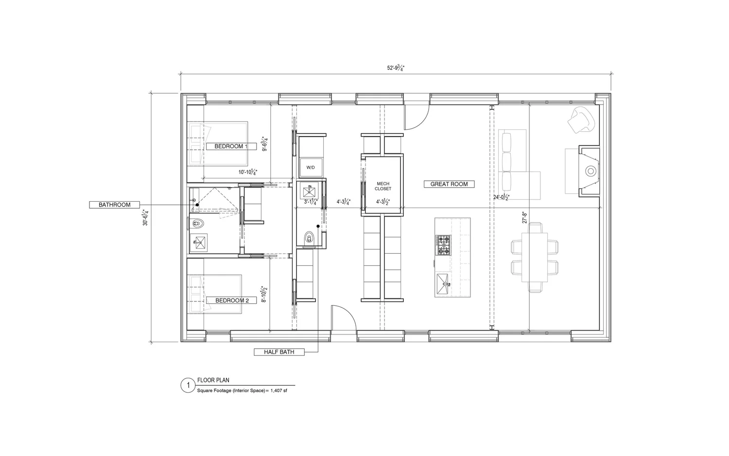
2 Bedroom 1.5 Bath A
N/A
- ManufacturerHygge Supply
- Model2 Bedroom 1.5 Bath A
- Base Price$435,000
- SizeN/A
- BedroomsN/A
- BathroomsN/A
- CategoryGuest House
- LocationUSA
Back to directory
2 Bedroom 1.5 Bath A photo 1
Hygge Supply
N/A