The Timbers photo 1
Gastineau Log Homes
The Timbers
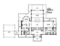
Download FloorplanThis home has all the features you would expect in a luxury log home … along with some surprises! The first thing to catch the eye is the double staircase in the entry. From there you’ll find a distinctive feature in each room: a double sided fireplace in both the master suite and the living room, an octagonal breakfast space, an abundance of natural light in the living space, a post and beam carport that doubles as a party porch. The list goes on and on! This truly is the house that has everything.
- ManufacturerGastineau Log Homes
- ModelThe Timbers
- Base PriceN/A
- Size4,933 sq ft
- BedroomsN/A
- BathroomsN/A
- CategoryPrimary Residence
- LocationUSA
Back to directory