Grizzly Adams photo 1
Gastineau Log Homes
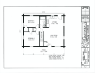
Grizzly Adams
Ideal as a weekend/starter/retirement home, our Grizzly Adams may be the biggest little house on the prairie. A true greatroom with kitchen and two bedrooms provide all that’s necessary for living simply. It’s easy to add porches or a deck. With some imagination, the floor plan can become the core of a home that can expand as your needs change.
- ManufacturerGastineau Log Homes
- ModelGrizzly Adams
- Base PriceN/A
- Size840 sq ft
- BedroomsN/A
- BathroomsN/A
- CategoryPrimary Residence
- LocationUSA
Back to directory