Dogwood photo 1
Gastineau Log Homes
Dogwood
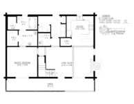
Download FloorplanLooking for a lot of features in a smaller footprint? The Dogwood may be the perfect design for you! In just over 2000 sqft, there are three bedrooms with a very nice master suite, two and a half baths, and a utility room on the main level. The gable in front adds great curb appeal but also brings natural light into the living space. The second floor rear dormer provides full height head space for spacious bedrooms. The Dogwood provides a lot of house in a rectangular footprint, which is the most economical style home to build.
- ManufacturerGastineau Log Homes
- ModelDogwood
- Base PriceN/A
- Size2,017 sq ft
- BedroomsN/A
- BathroomsN/A
- CategoryPrimary Residence
- LocationUSA
Back to directory