ModCab - 1366 sf photo 1
FabCab
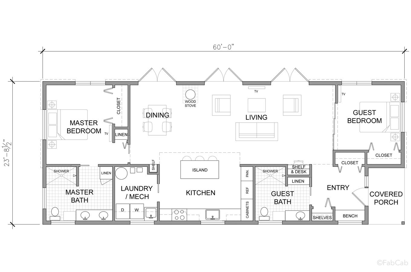
ModCab - 1366 sf
For our ModCab series, we hewed closely to our tenets of airy and light-filled spaces and pared down the materiality to create a clean, modern aesthetic for these structural insulated panel prefab homes. We have a number of ModCab design concepts that serve as starting point for collaboration. Together with the client, we modify, iterate and tweak the layout to create the perfect floor plan. Interior finishes for ModCab series include lighting packages, flooring options, cabinetry packages, countertops, and other customizable interior finishes. Custom interior design services and alterations to the collections palettes, products or cabinetry layout are available. Premium...
- ManufacturerFabCab
- ModelModCab - 1366 sf
- Base PriceN/A
- Size1,366 sq ft
- BedroomsN/A
- Bathrooms2
- CategoryGuest House, Primary Residence
- LocationUSA
Back to directory