The Prefab Directory
Directory
About
Terms
Rosedale photo 1
Dvele
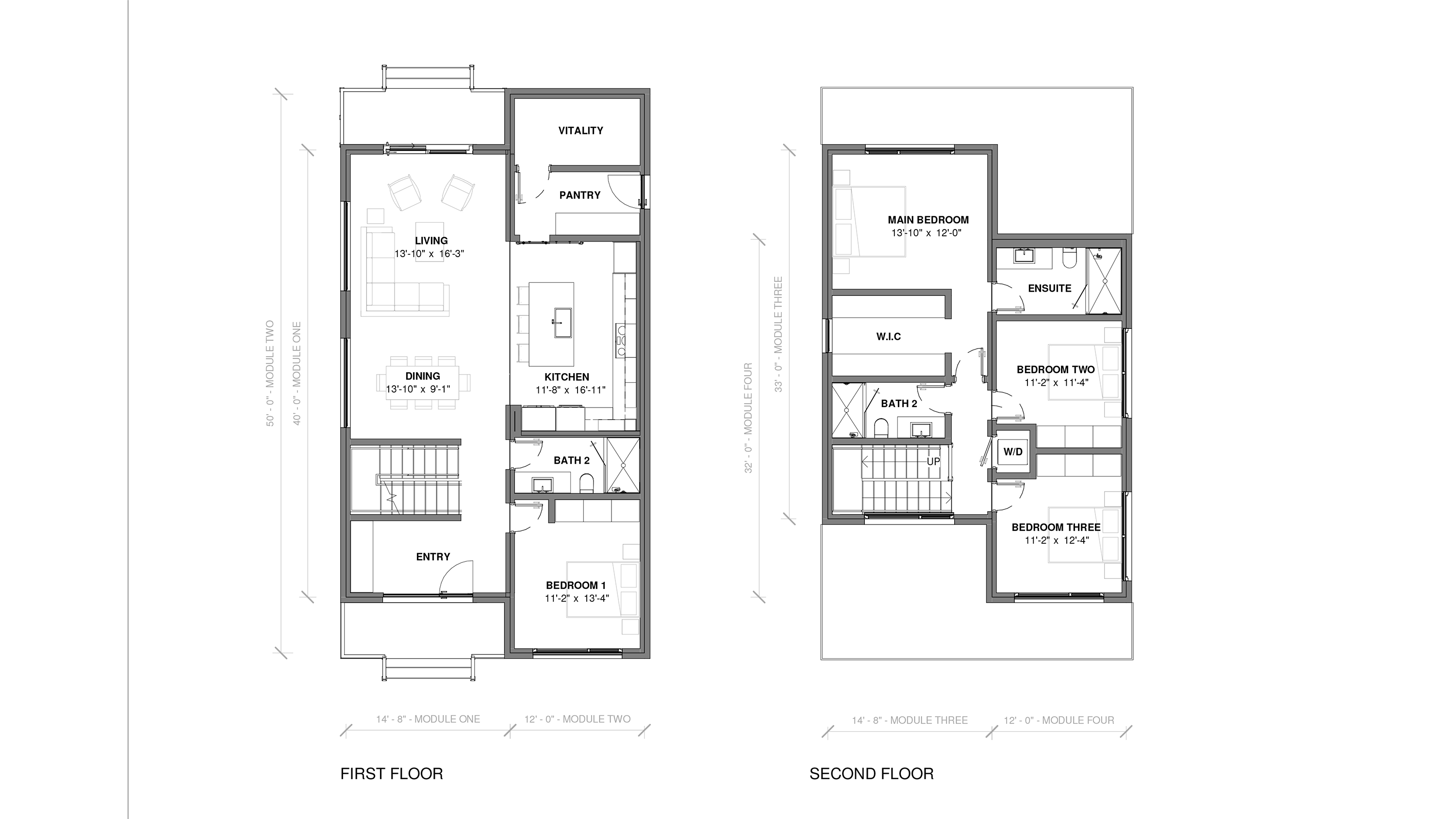
Rosedale
N/A
Manufacturer
Dvele
Model
Rosedale
Base Price
$610,000
Size
N/A
Bedrooms
4
Bathrooms
3
Category
Primary Residence
Location
USA
Open Model Listing
Back to directory