The Prefab Directory
Directory
About
Terms
Rathtrevor photo 1
Dvele
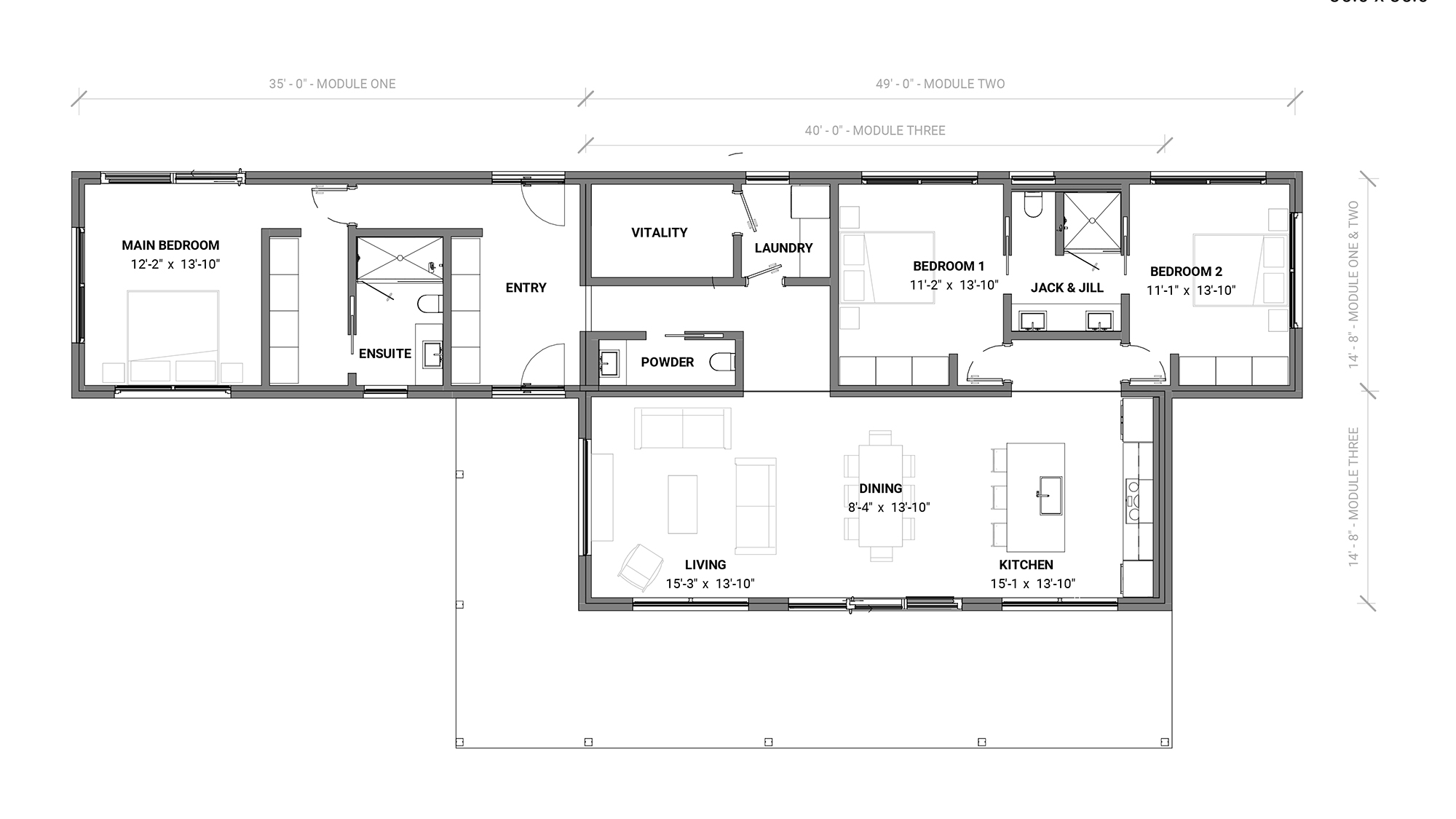
Rathtrevor
N/A
Manufacturer
Dvele
Model
Rathtrevor
Base Price
$550,000
Size
N/A
Bedrooms
3
Bathrooms
3
Category
Primary Residence
Location
USA
Open Model Listing
Back to directory