The Prefab Directory
Directory
About
Terms
Finlay photo 1
Dvele
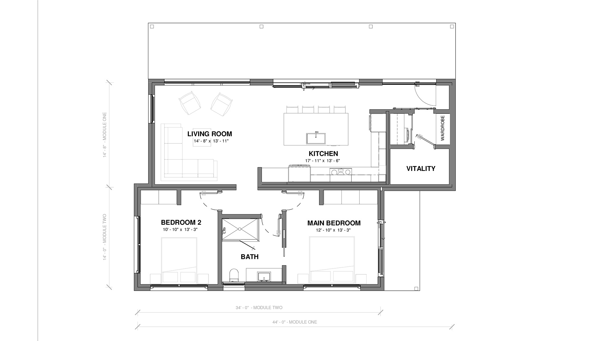
Finlay
N/A
Manufacturer
Dvele
Model
Finlay
Base Price
$390,000
Size
N/A
Bedrooms
2
Bathrooms
1
Category
Primary Residence
Location
USA
Open Model Listing
Back to directory