Vesta 24 photo 1
California Tiny House
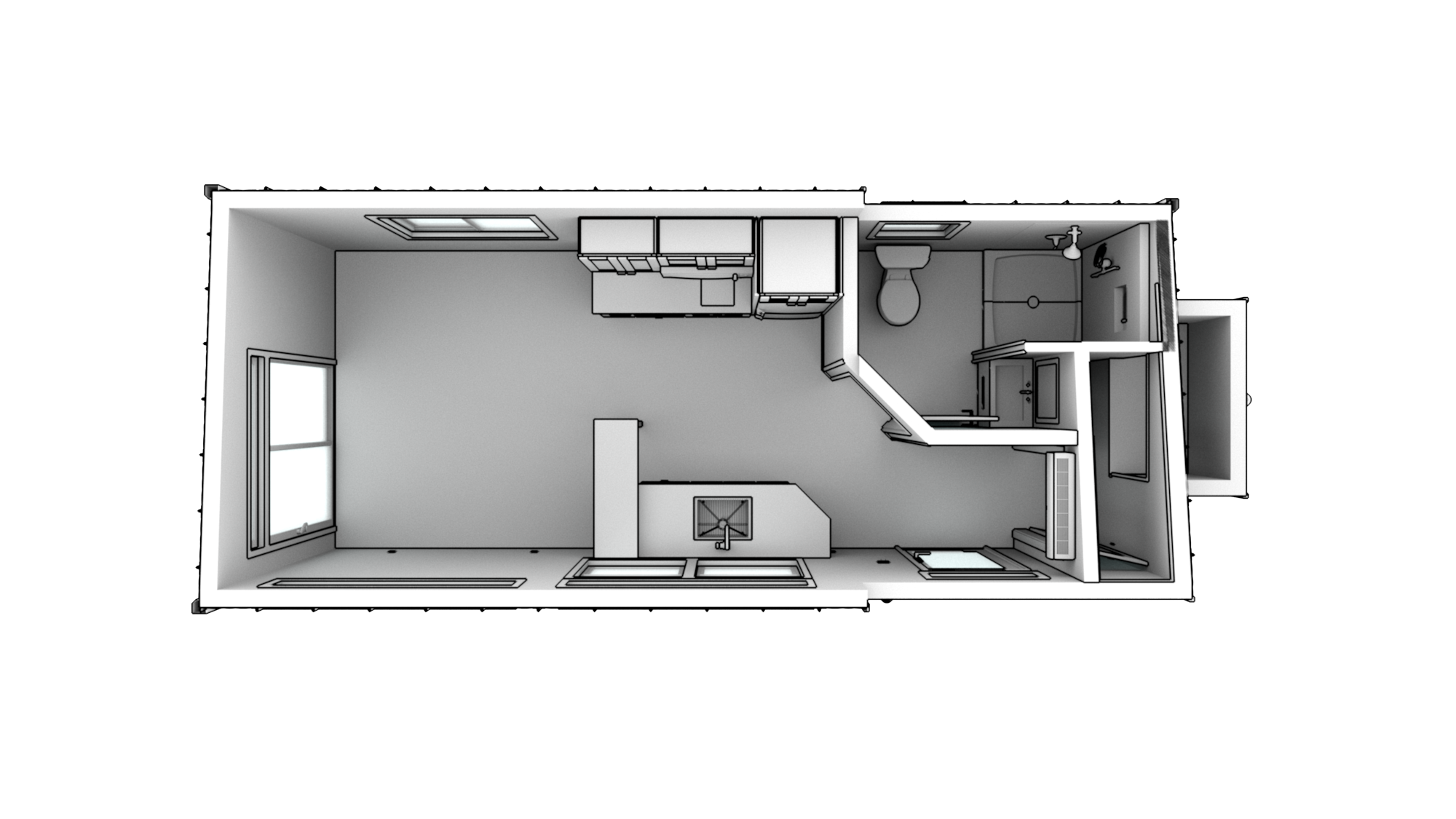
Vesta 24
Description of this modelOur Vesta 24 is the studio in the luxury Vesta series. It is the perfect unit for a guest house, vacation rental, pool house, or anyone not interested in a dedicated bedroom. Just like the rest of the Vesta series it comes standard with most of the upgrades already included. Whether built to order or if we have one stock, The Vesta 24 can be customized to fit your needs!
- ManufacturerCalifornia Tiny House
- ModelVesta 24
- Base Price$106,599
- Size240 sq ft
- BedroomsN/A
- BathroomsN/A
- CategoryADU, Guest House, Tiny Home, Multi-purpose Unit
- LocationUSA
Back to directory