Gallery 20 photo 1
California Tiny House
Gallery 20
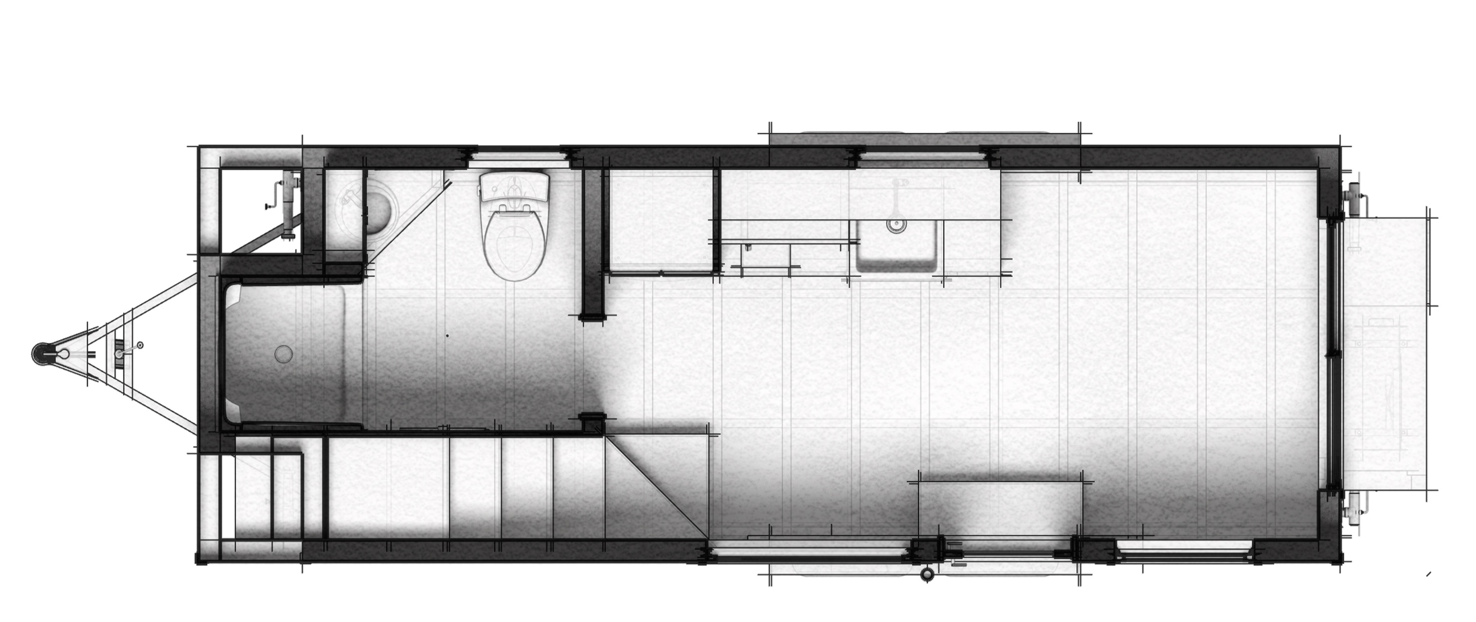
Description of this modelAt only 8.5x20, this is truly a Tiny House. Don’t let it’s size fool you though, the Gallery 20 offers a queen sized loft bedroom, spacious bathroom, kitchen and living area. They are a perfect home for those who have limited space or want a home that’s more easily transported. This model has our premium window upgrade and awesome brass finishes. It also has an operable skylight in the loft for those that want to open it up and sleep under the stairs. As with all of our built to order or stock units it can still...
- ManufacturerCalifornia Tiny House
- ModelGallery 20
- Base Price$64,555
- Size160 sq ft
- BedroomsN/A
- BathroomsN/A
- CategoryADU, Guest House, Tiny Home, Multi-purpose Unit
- LocationUSA
Back to directory