STEP ADU photo 1
Bunch ADU
STEP ADU
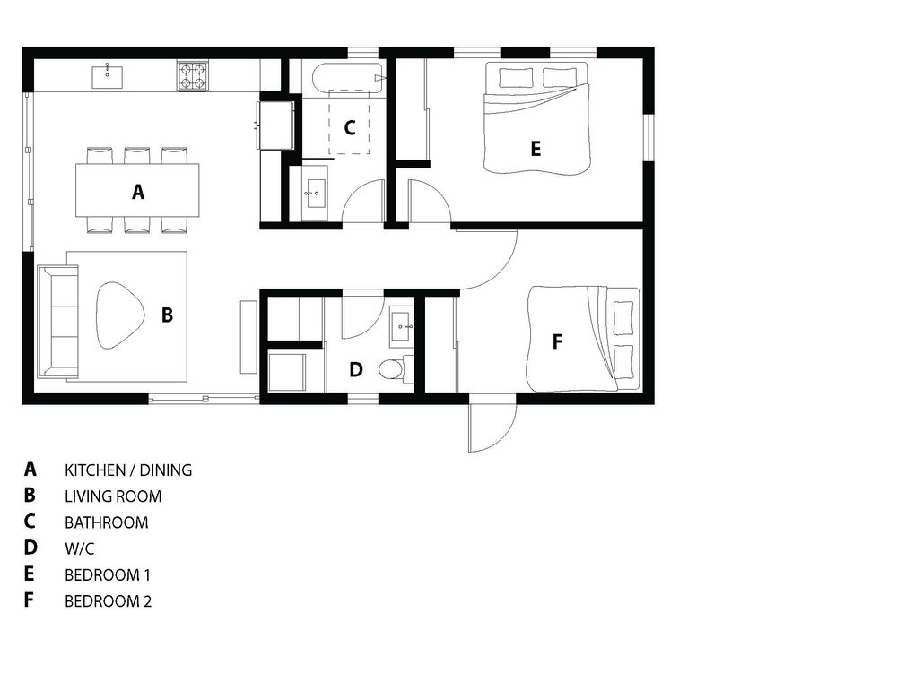
This 2-bedroom unit is instantly expanded by its high stepped ceiling and clerestory windows. Skylights and high windows bring light throughout the space uninterrupted. With a spa-like experience of the “wet” bathing room and separate toilet room, this ADU gives you a luxurious experience.
- ManufacturerBunch ADU
- ModelSTEP ADU
- Base Price$425
- Size880 sq ft
- Bedrooms2
- Bathrooms2
- CategoryADU
- LocationUSA
Back to directory