GARAGE STUDIO ADU photo 1
Bunch ADU
GARAGE STUDIO ADU
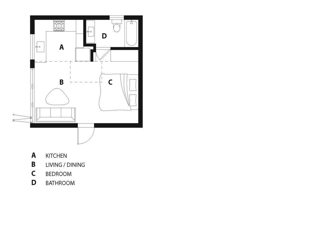
The studio unit is a similar footprint to a garage and is our most popular for clients wanting to replace or “convert” their existing garage into an ADU. We have built several variations of this design ranging from 300 sf to 500 sf including open studio concepts or a one bedroom. All options have full amenities including washer/ dryer, refrigerator, dishwasher and HVAC.
- ManufacturerBunch ADU
- ModelGARAGE STUDIO ADU
- Base Price$300
- Size300 sq ft
- BedroomsN/A
- Bathrooms1
- CategoryADU, Guest House, Tiny Home, Multi-purpose Unit
- LocationUSA
Back to directory